Dane techniczne
- Powierzchnia użytkowa 24.03 m²
- Powierzchnia zabudowy 30.52 m²
- Kubatura 92.29 m³
- Kąt nachylenia dachu 17.00°
- Powierzchnia dachu 32.50 m²
- Wysokość budynku 4.23 m
- Min. wymiary działki 13.50x17.50 m
- Garaż 19.09 m²
- Pracownia Archipelag
Technologia budowy
Garaż zaprojektowany w technologii murowej ze stropem drewnianym. Dach jednospadowy o konstrukcji drewnianej pokryty blachodachówką. Więźba dachowa dostępna również w systemie prefabrykacji drewnianej. Elewacje wykończono tynkiem mineralnym, cokół – okładziną kamienną. Stolarka okienna drewniana lub PCV.
Opis
Garaż jednostanowiskowy z wiatą i pomieszczeniem gospodarczym, dostępnym zarówno z zewnątrz, jak i od wewnątrz budynku. Garaż G33 wyróżnia oryginalna bryła oraz ciekawa linia dachu. Atrakcyjnym elementem budynku jest wiata, która oprócz swojej funkcji dekoracyjnej, spełnia się również jako funkcjonalne miejsce postojowe oraz komfortowa strefa rekreacyjna. Garaż G33 został dodatkowo wyposażony w praktyczne pomieszczenie gospodarcze, które w miarę potrzeb domowników można przeznaczyć na składzik na narzędzia lub mini-warsztat.
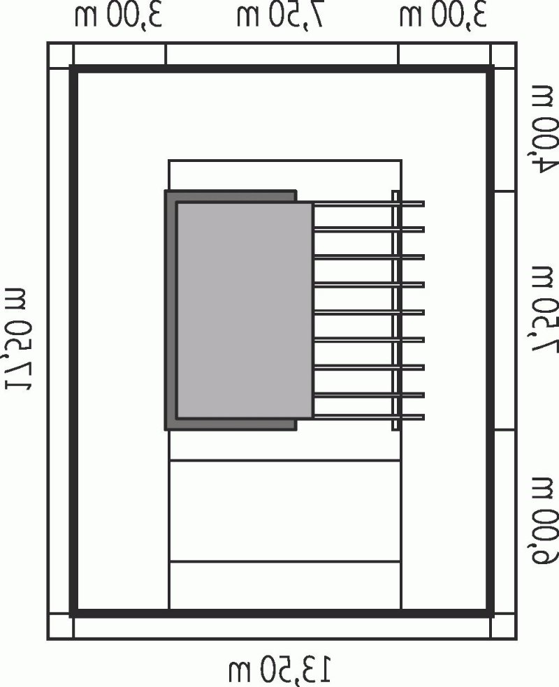
Rzuty
PARTER
- Garaż 19.09 m2
- Pom. gospodarcze 4.94 m2
Rzuty
PARTER
- Garaż 19.09 m2
- Pom. gospodarcze 4.94 m2
Dbamy o swoich Klientów, jak nikt inny!
Do każdego projektu zakupionego za pośrednictwem serwisu kreoDOM.pl otrzymasz książeczkę z rabatami na zakupy w firmach Komfort, Fachowiec, Domino Łazienki, Komandor, Witek Home i innych. Książeczka na pewno okaże się przydatna podczas urządzania Twojego wymarzonego domu!
Książeczka z rabatami do takich firm jak: Komfort, Domino Łazienki, Fachowiec, Vox, Komandor, Witek Home i innych
Gwarancja
bezpiecznych zakupów
Dodatkowe pakiety projektowe
- Kosztorys inwestorski cena ustalana indywidualnie
- Wentylacja mechaniczna z rekuperacją 700,00 zł
- Wentylacja mechaniczna + GPWC 700,00 zł
- Kolektory Słoneczne 400,00 zł
- Panele Fotowoltaiczne 400,00 zł
- Pompa Ciepła 500,00 zł
- Kominek z DGP 400,00 zł
- Biologiczna oczyszczalnia ścieków 150,00 zł
- Centralny Odkurzacz 300,00 zł
- Szambo przydomowe 200,00 zł
- Dodatkowy egzemplarz projektu 150,00 zł