Budynek wykonany w technologii tradycyjnej. Ściany warstwowe grubości 39cm, murowane z bloczków z betonu komórkowego grubości 24cm, ocieplone styropianem grubości 15cm. Ściany wewnętrzne z bloczków z betonu komórkowego grubości 24cm i 12cm. Bramy o wymiarach 3,20x3,30m. Kominy systemowe firmy SCHIEDEL. Strop gęstożebrowy „TERIVA 6,0”. Więźba dachowa dwuspadowa, stalowa, pokryta płytą warstwową.
PROJEKT:
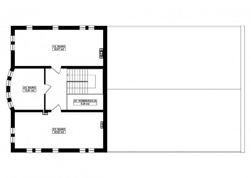
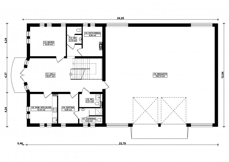
Projekt budynku magazynowego, parterowego, niepodpiwniczonego z poddaszem użytkowym z czterema pomieszczeniami biurowymi, pomieszczeniem socjalnym, szatnią, łazienką, trzema WC i kotłownią. Do projektu dołączone jest zestawienie: stali, więźby dachowej oraz stolarki drzwiowej, jak również bezpłatna zgoda na dokonanie zmian.