Dane techniczne
- Powierzchnia użytkowa 170.90 m²
- Powierzchnia zabudowy 232.20 m²
- Kubatura 1098.50 m³
- Kąt nachylenia dachu 30.00°
- Wysokość budynku 6.68 m
- Min. wymiary działki 29.50x28.50 m
- Garaż 20.60 m²
- Pracownia MOJ-DOM
Technologia budowy
Fundamenty: żelbetowe, wylewane
Ściany fundamentów: betonowe wylewane lub z bloczków betonowych
Ściany zewnętrzne: dwuwarstwowe, beton komórkowy lub pustaki ceramiczne
Strop: żelbetowy, prefabrykowany
Schody: żelbetowe
Pokrycie dachu: dachówka betonowa
Opis
Budynek jednorodzinny, parterowy, z poddaszem mieszkalnym, niepodpiwniczony, 4 pokoje, kuchnia z jadalnią, garaż
Rzuty
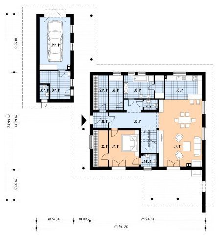
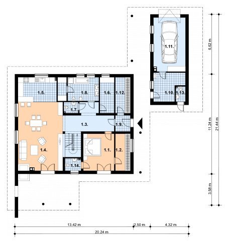
1. sypialnia14.0 m2
2. garderoba6.9 m2
3. komunikacja15.5 m2
4. pokój dzienny37.5 m2
5. kuchnia12.1 m2
6. pralnia6.5 m2
7. wc1.9 m2
8. łazienka12.4 m2
9. wiatrołap3.1 m2
10. kotłownia9.4 m2
11. garaż20.6 m2
12. garderoba6.9 m2
13. wc1.7 m2
14. wc2.3 m2
1. korytarz37.9 m2
2. garderoba16.7 m2
3. sypialnia34.8 m2
4. sypialnia33.2 m2
Rzuty
1. sypialnia14.0 m2
2. garderoba6.9 m2
3. komunikacja15.5 m2
4. pokój dzienny37.5 m2
5. kuchnia12.1 m2
6. pralnia6.5 m2
7. wc1.9 m2
8. łazienka12.4 m2
9. wiatrołap3.1 m2
10. kotłownia9.4 m2
11. garaż20.6 m2
12. garderoba6.9 m2
13. wc1.7 m2
14. wc2.3 m2
1. korytarz37.9 m2
2. garderoba16.7 m2
3. sypialnia34.8 m2
4. sypialnia33.2 m2
Dbamy o swoich Klientów, jak nikt inny!
Do każdego projektu zakupionego za pośrednictwem serwisu kreoDOM.pl otrzymasz książeczkę z rabatami na zakupy w firmach Komfort, Fachowiec, Domino Łazienki, Komandor, Witek Home i innych. Książeczka na pewno okaże się przydatna podczas urządzania Twojego wymarzonego domu!
Książeczka z rabatami do takich firm jak: Komfort, Domino Łazienki, Fachowiec, Vox, Komandor, Witek Home i innych
Gwarancja
bezpiecznych zakupów
Dodatkowe pakiety projektowe