Dane techniczne
- Powierzchnia użytkowa 127.10 m²
- Powierzchnia zabudowy 143.20 m²
- Kubatura 577.84 m³
- Kąt nachylenia dachu 40.00°
- Powierzchnia dachu 239.00 m²
- Wysokość budynku 8.93 m
- Min. wymiary działki 21.00x25.50 m
- Garaż 20.34 m²
- Pracownia Archipelag
Technologia budowy
Budynek zaprojektowano w technologii murowej ze stropem gęstożebrowym. Dach o konstrukcji drewnianej pokryty dachówką ceramiczną Röben. Elewacje wykończono tynkiem. Stolarka okienna drewniana lub PCV.
Opis
Dom parterowy z użytkowym poddaszem, niepodpiwniczony, z garażem, przeznaczony dla 4-5-osobowej rodziny. Charakteryzuje się prostą bryłą przekrytą dwuspadowym dachem oraz wygodnym układem pomieszczeń. Na parterze znajduje się kuchnia ze spiżarnią, salon i dodatkowy pokój z łazienką. Na poddaszu znajdują się trzy sypialnie, łazienka ze schowkiem oraz garderoba. Dom można zaadaptować na działkę z wejściem od południa, zamieniając miejscami kuchnię i salon.
Rzuty
PARTER
- Wiatrołap 3.61 m2
- Hol 15.99 m2
- Kuchnia 11.57 m2
- Spiżarnia 1.91 m2
- Pokój dzienny 30.76 m2
- Pokój 14.05 m2
- Łazienka 2.36 m2
- Pom. gospodarcze 7.08 m2
- Kotłownia 5.98 m2
- Garaż 20.34 m2
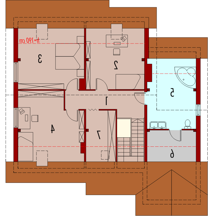
PODDASZE
- Korytarz 8.22 m2
- Sypialnia 13.32 m2
- Sypialnia 14.87 m2
- Pokój 16.27 m2
- Łazienka 13.19 m2
- Pom. gospodarcze 4.17 m2
- Garderoba 5.34 m2
Rzuty
PARTER
- Wiatrołap 3.61 m2
- Hol 15.99 m2
- Kuchnia 11.57 m2
- Spiżarnia 1.91 m2
- Pokój dzienny 30.76 m2
- Pokój 14.05 m2
- Łazienka 2.36 m2
- Pom. gospodarcze 7.08 m2
- Kotłownia 5.98 m2
- Garaż 20.34 m2
PODDASZE
- Korytarz 8.22 m2
- Sypialnia 13.32 m2
- Sypialnia 14.87 m2
- Pokój 16.27 m2
- Łazienka 13.19 m2
- Pom. gospodarcze 4.17 m2
- Garderoba 5.34 m2
Dbamy o swoich Klientów, jak nikt inny!
Do każdego projektu zakupionego za pośrednictwem serwisu kreoDOM.pl otrzymasz książeczkę z rabatami na zakupy w firmach Komfort, Fachowiec, Domino Łazienki, Komandor, Witek Home i innych. Książeczka na pewno okaże się przydatna podczas urządzania Twojego wymarzonego domu!
Książeczka z rabatami do takich firm jak: Komfort, Domino Łazienki, Fachowiec, Vox, Komandor, Witek Home i innych
Gwarancja
bezpiecznych zakupów
Dodatkowe pakiety projektowe
- Kosztorys inwestorski cena ustalana indywidualnie
- Wentylacja mechaniczna z rekuperacją 700,00 zł
- Wentylacja mechaniczna + GPWC 700,00 zł
- Kolektory Słoneczne 400,00 zł
- Panele Fotowoltaiczne 400,00 zł
- Pompa Ciepła 500,00 zł
- Kominek z DGP 400,00 zł
- Biologiczna oczyszczalnia ścieków 150,00 zł
- Centralny Odkurzacz 300,00 zł
- Szambo przydomowe 200,00 zł
- Dodatkowy egzemplarz projektu 150,00 zł