Dane techniczne
- Powierzchnia użytkowa 120.58 m²
- Powierzchnia zabudowy 217.23 m²
- Kubatura 493.36 m³
- Kąt nachylenia dachu 26.00°
- Powierzchnia dachu 230.00 m²
- Wysokość budynku 6.40 m
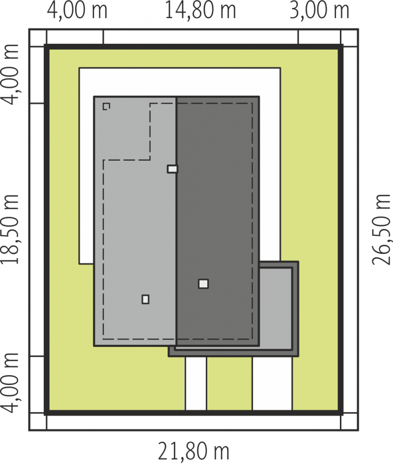
- Min. wymiary działki 21.80x26.50 m
- Garaż 25.34 m²
- Pracownia Archipelag
Technologia budowy
Technologia i konstrukcja:
Ściany zewnętrzne: murowane, dwuwarstwowe, pustaki ceramiczne Thermoziegel firmy Röben 24 cm, ocieplenie styropian Termo Organika 20 cm
Ściany wewnętrzne: nośne i działowe murowane, pustaki ceramiczne Thermoziegel firmy Röben 24 cm i 12 cm
Strop i stropodach nad garażem: gęstożebrowy Teriva, stropodach pełny, ocieplenie wełna mineralna 30 cm
Dach: konstrukcja drewniana, blacha na rąbek stojący Classic firmy Ruukki, więźba dachowa dostępna również w systemie prefabrykacji drewnianej
Rozwiązania instalacyjne:
Ogrzewanie: kocioł gazowy kondensacyjny, rozprowadzenie ciepła: grzejniki
Wentylacja: grawitacyjna
Wykończenie:
Elewacje: tynk cienkowarstwowy mineralny w kolorze TO-PA001 z palety firmy Termo Organika, okładzina drewniana i kamienna
Stolarka: drewniana, PVC lub aluminiowa, rolety zewnętrzne w systemie CleverBox firmy BeClever
Otoczenie: płyty tarasowe firmy Libet, system tarasowy ProDeck - deska kompozytowa Terra w kolorze orzech
Opis
Daniel II G1 to wymarzony dom dla wszystkich, którzy kochają świetliste wnętrza i szukają idealnej harmonii między nowoczesnym designem a przytulnością. Najatrakcyjniejszą częścią projektu jest rodzinna przestrzeń wspólna, gdzie domownicy mogą komfortowo wypocząć, a letnią porą swobodnie przenieść się na zadaszony taras i korzystać z uroków ogrodu. Maksimum wygody w najlepszym wydaniu.
Rzuty
- Wiatrołap 4.61 m²
- Hol 7.10 m²
- Kuchnia 10.98 m²
- Spiżarnia 1.18 m²
- Jadalnia 13.76 m²
- Pokój dzienny 22.45 m²
- Garderoba 3.14 m²
- Łazienka 3.05 m²
- Korytarz 7.69 m²
- Sypialnia 16.27 m²
- Sypialnia 11.57 m²
- Sypialnia 11.57 m²
- Łazienka 7.21 m²
- Kotłownia 8.79 m²
- Garaż 25.34 m²
Rzuty
- Wiatrołap 4.61 m²
- Hol 7.10 m²
- Kuchnia 10.98 m²
- Spiżarnia 1.18 m²
- Jadalnia 13.76 m²
- Pokój dzienny 22.45 m²
- Garderoba 3.14 m²
- Łazienka 3.05 m²
- Korytarz 7.69 m²
- Sypialnia 16.27 m²
- Sypialnia 11.57 m²
- Sypialnia 11.57 m²
- Łazienka 7.21 m²
- Kotłownia 8.79 m²
- Garaż 25.34 m²
Dbamy o swoich Klientów, jak nikt inny!
Do każdego projektu zakupionego za pośrednictwem serwisu kreoDOM.pl otrzymasz książeczkę z rabatami na zakupy w firmach Komfort, Fachowiec, Domino Łazienki, Komandor, Witek Home i innych. Książeczka na pewno okaże się przydatna podczas urządzania Twojego wymarzonego domu!
Książeczka z rabatami do takich firm jak: Komfort, Domino Łazienki, Fachowiec, Vox, Komandor, Witek Home i innych
Gwarancja
bezpiecznych zakupów
Dodatkowe pakiety projektowe
- Kosztorys inwestorski cena ustalana indywidualnie
- Wentylacja mechaniczna z rekuperacją 700,00 zł
- Wentylacja mechaniczna + GPWC 700,00 zł
- Kolektory Słoneczne 400,00 zł
- Panele Fotowoltaiczne 400,00 zł
- Pompa Ciepła 500,00 zł
- Kominek z DGP 400,00 zł
- Biologiczna oczyszczalnia ścieków 150,00 zł
- Centralny Odkurzacz 300,00 zł
- Szambo przydomowe 200,00 zł
- Dodatkowy egzemplarz projektu 150,00 zł