ściany zewnętrzne tradycyjne murowane dwuwarstwowe - pustak ceramiczny 25cm i styropian
strop gęstożebrowy
dach o konstrukcji drewnianej z pokryciem z dachówki ceramicznej, cementowej lub blachodachówki
To rozłożysty parterowy, bardzo komfortowy dom z poddaszem użytkowym.
Do domu prowadzi przestronny doświetlony przedsionek z pojemną szafą.
Bardzo przemyślane rozplanowanie pomieszczeń zapewnia elastyczność w dostosowaniu ich do swoich potrzeb. Wyraźne wydzielenie stref funkcjonalnych domu pozwala na komfortowe i niezależne korzystanie z nich, a także zapewnia możliwość zamknięcia drzwiami części prywatnej. Także salon i kuchnia mogą zostać wydzielone ścianami z osobnymi wejściami do obu pomieszczeń.
Foremny 30-to metrowy ustawny salon wraz z dużą ścianą telewizyjną zapewnia łatwe i funkcjonalne umeblowanie. Duża jadalnia, w której z powodzeniem zmieści się stół na 12 osób na szczególne okazje.
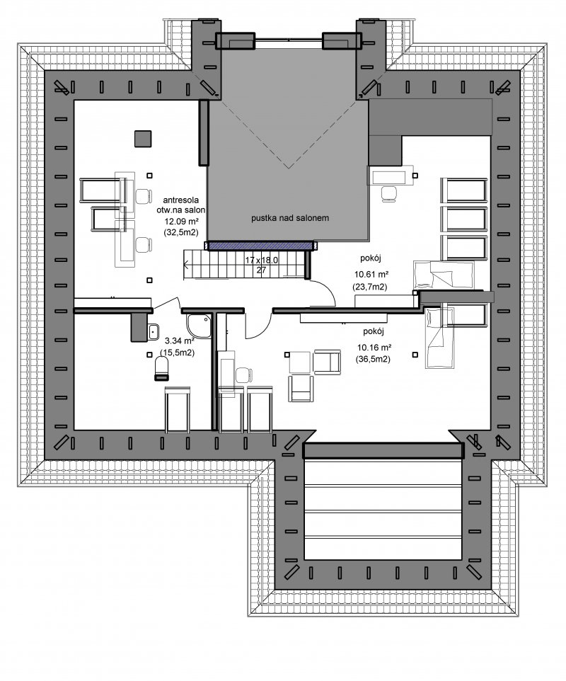
Wysoki salon z pięknym dużym przeszkleniem otwartym na ogród jest niewątpliwą atrakcją tego domu. Został on dodatkowo wzbogacony antresolą otwartą na salon, które może być wykorzystana np. jako kącik komputerowy.
Duża kuchnia z przestronną spiżarnią otwarta jest na zadaszony taras, dostępny także z salonu. To bardzo atrakcyjne rozwiązanie, które pozwala na wygodne wykorzystanie tarasu w roli letniej jadalni. Duże zadaszenie zostało tak przemyślane, by nie zaciemniało salonu.
W części prywatnej znalazły się 2 duże, foremne sypialnie, obie z własną garderobą oraz ogólnodostępna łazienka a także miejsce na pojemną szafę w przedpokoju. Największa sypialnia posiada także własną łazienkę. Z powodzeniem na parterze zmieszczą się także 3 sypialnie, co przedstawia drugi wariant rzutu parteru.
Duża kotłownia pozwala na zastosowanie dowolnego sposobu opału.
Elegancki, wysmakowany, o dobrze dobranych proporcjach bryły i wyważonym detalu. Ciekawe nowoczesne elewacje zapewniają atrakcyjny wygląd.