Dane techniczne
- Powierzchnia użytkowa 131.54 m²
- Powierzchnia zabudowy 117.01 m²
- Kubatura 459.34 m³
- Kąt nachylenia dachu 45.00°
- Powierzchnia dachu 220.40 m²
- Wysokość budynku 9.15 m
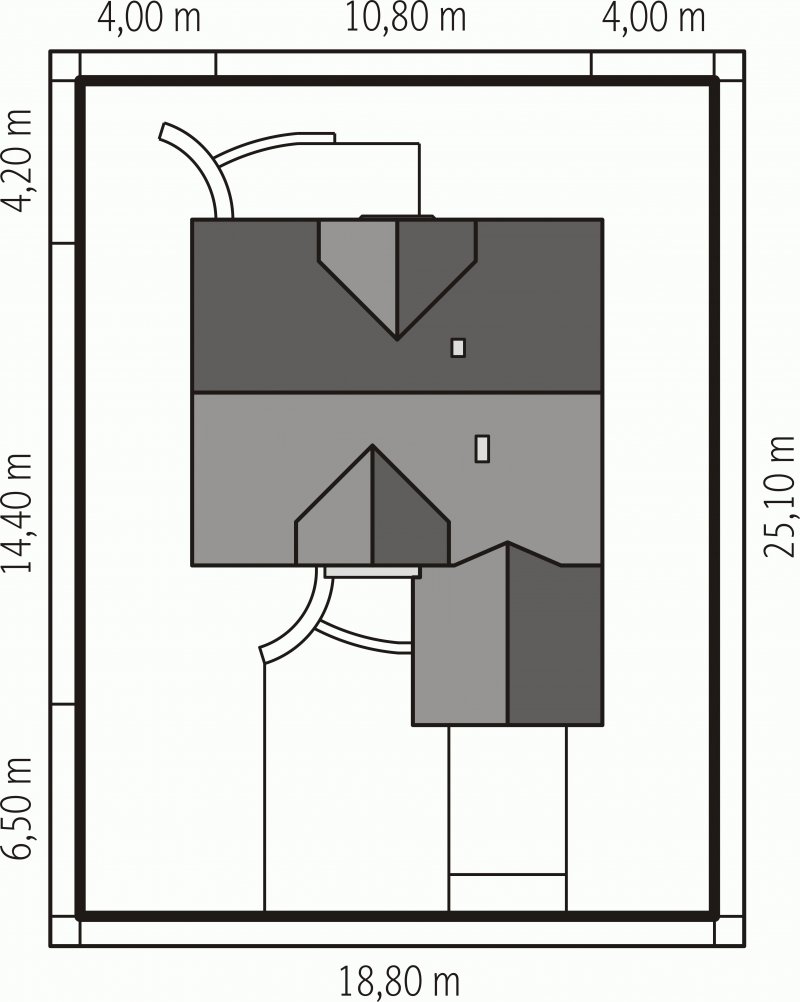
- Min. wymiary działki 18.80x25.10 m
- Garaż 19.60 m²
- Pracownia Archipelag
Technologia budowy
Dom zaprojektowany w technologii murowej ze stropem gęstożebrowym. Schody wewnętrzne drewniane. Dach o konstrukcji drewnianej kryty dachówką ceramiczną. Stolarka okienna drewniana lub PCV. Elewację wykonano z tynku strukturalnego. Rolety zewnętrzne naokienne w systemie CleverBox firmy BeClever.
Opis
Dom parterowy z użytkowym poddaszem, niepodpiwniczony, z garażem jednostanowiskowym, przeznaczony dla 4-5-osobowej rodziny. Na strefę dzienną, znajdującą się na parterze składa się: przestronny salon z jadalnią, wygodna kuchnia ze spiżarnią, gabinet oraz łazienka, a także pomieszczenie gospodarcze dostępne z garażu. Na poddaszu zaplanowano strefę nocną: trzy pokoje, wygodną łazienkę oraz pralnię. Zaplanowany w projekcie wykusz podnosi walory użytkowe i estetyczne domu, a także dodaje atrakcyjności prostej bryle budynku.
Rzuty
PARTER
- Wiatrołap 6.03 m2
- Korytarz 8.69 m2
- Kuchnia 10.21 m2
- Spiżarnia 1.35 m2
- Jadalnia 14.15 m2
- Pokój dzienny 17.56 m2
- Gabinet 8.21 m2
- Toaleta 2.30 m2
- Pom. gospodarcze 3.86 m2
- Garaż 19.60 m2
PODDASZE
- Korytarz 6.61 m2
- Sypialnia 14.32 m2
- Pokój 12.82 m2
- Pokój 14.13 m2
- Łazienka 6.20 m2
- Pralnia 5.10 m2
Rzuty
PARTER
- Wiatrołap 6.03 m2
- Korytarz 8.69 m2
- Kuchnia 10.21 m2
- Spiżarnia 1.35 m2
- Jadalnia 14.15 m2
- Pokój dzienny 17.56 m2
- Gabinet 8.21 m2
- Toaleta 2.30 m2
- Pom. gospodarcze 3.86 m2
- Garaż 19.60 m2
PODDASZE
- Korytarz 6.61 m2
- Sypialnia 14.32 m2
- Pokój 12.82 m2
- Pokój 14.13 m2
- Łazienka 6.20 m2
- Pralnia 5.10 m2
Dbamy o swoich Klientów, jak nikt inny!
Do każdego projektu zakupionego za pośrednictwem serwisu kreoDOM.pl otrzymasz książeczkę z rabatami na zakupy w firmach Komfort, Fachowiec, Domino Łazienki, Komandor, Witek Home i innych. Książeczka na pewno okaże się przydatna podczas urządzania Twojego wymarzonego domu!
Książeczka z rabatami do takich firm jak: Komfort, Domino Łazienki, Fachowiec, Vox, Komandor, Witek Home i innych
Gwarancja
bezpiecznych zakupów
Dodatkowe pakiety projektowe
- Kosztorys inwestorski cena ustalana indywidualnie
- Wentylacja mechaniczna z rekuperacją 700,00 zł
- Wentylacja mechaniczna + GPWC 700,00 zł
- Kolektory Słoneczne 400,00 zł
- Panele Fotowoltaiczne 400,00 zł
- Pompa Ciepła 500,00 zł
- Kominek z DGP 400,00 zł
- Biologiczna oczyszczalnia ścieków 150,00 zł
- Centralny Odkurzacz 300,00 zł
- Szambo przydomowe 200,00 zł
- Dodatkowy egzemplarz projektu 150,00 zł