Dane techniczne
- Powierzchnia użytkowa 75.05 m²
- Powierzchnia zabudowy 71.98 m²
- Kubatura 229.33 m³
- Kąt nachylenia dachu 40.00°
- Powierzchnia dachu 124.51 m²
- Wysokość budynku 6.71 m
- Min. wymiary działki 10.32x7.78 m
- Garaż 36.54 m²
- Pracownia LK & Projekt
Technologia budowy
- Ławy fundamentowe: żelbetowe
- Ściany fundamentowe: betonowe
- Ściany zewnętrzne: z pustaków ceramicznych 'Porotherm' gr. 38cm ocieplone welną mineralną o gr. 6cm
- Ściany wewnętrzne: z pustaków ceramicznych Porotherm gr. 25, 11.5 firmy Wienerberger
- Strop: żelbetowy
- Konstrukcja dachu: drewniana
- Pokrycie dachu: dachówką ceramiczną
- Elewacje: wykończone tynkiem silikonowym
- Okna i drzwi balkonowe: drewniane
- Wentylacja: grawitacyjna
- Stan na kwartał: III 2010 zł.
- Roboty budowlane stanu zerowego: 15 104.58 zł.
- Stan surowy zadaszony: 51 812.03 zł.
- Stolarka: 10 093.13 zł.
- Roboty budowlane stanu wykończeniowego: 38 959.19 zł.
- Instalacje: 18 500.00 zł.
- Koszt budowy ogółem (bez VAT): 134 468.93 zł.
Opis
Budynek gospodarczo-garażowy z poddaszem użytkowym, z miejscem na dwa samochody oraz pomieszczenie gospodarcze.
Rzuty
PARTER
Parter
1. Pomieszczenie gospodarcze: 18.32m
2. Garaż: 36.54m
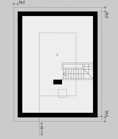
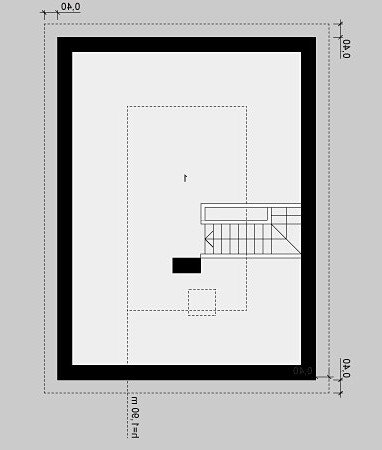
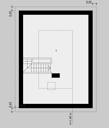
PODDASZE
Poddasze
1. Pomieszczenie gospodarcze: (60.60) 20.19m
Rzuty
PARTER
Parter
1. Pomieszczenie gospodarcze: 18.32m
2. Garaż: 36.54m
PODDASZE
Poddasze
1. Pomieszczenie gospodarcze: (60.60) 20.19m
Dbamy o swoich Klientów, jak nikt inny!
Do każdego projektu zakupionego za pośrednictwem serwisu kreoDOM.pl otrzymasz książeczkę z rabatami na zakupy w firmach Komfort, Fachowiec, Domino Łazienki, Komandor, Witek Home i innych. Książeczka na pewno okaże się przydatna podczas urządzania Twojego wymarzonego domu!
Książeczka z rabatami do takich firm jak: Komfort, Domino Łazienki, Fachowiec, Vox, Komandor, Witek Home i innych
Gwarancja
bezpiecznych zakupów
Dodatkowe pakiety projektowe
- Kosztorys inwestorski cena ustalana indywidualnie
- Kolektory słoneczne cena ustalana indywidualnie
- Kominek z DGP cena ustalana indywidualnie
- Wentylacja mechaniczna z rekuperacją cena ustalana indywidualnie
- Pompa ciepła cena ustalana indywidualnie