Dane techniczne
- Powierzchnia użytkowa 110.48 m²
- Powierzchnia zabudowy 130.08 m²
- Kubatura 522.00 m³
- Kąt nachylenia dachu 38.00°
- Powierzchnia dachu 211.00 m²
- Wysokość budynku 6.94 m
- Min. wymiary działki 23.54x16.34 m
- Garaż 21.00 m²
- Pracownia MG Projekt
Technologia budowy
- Fundamentybetonowe wylewane
- Ściany zewnętrznegazobeton + styropian lub pustaki ceramiczne + styropian
- Stropżelbetowy Teriva
- Elewacjetynk cienkopowłokowy
- Pokrycie dachudachówka ceramiczna lub blachodachówka
Opis
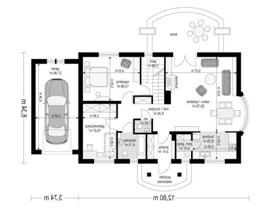
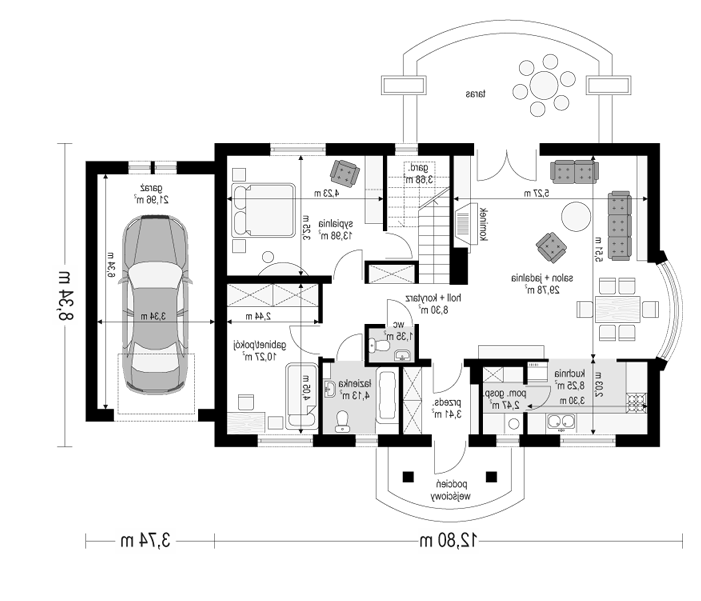
Gargamel z garażem jest domem jednorodzinnym będącym rozbudowaną wersją projektu Gargamel. Wewnątrz kryje nowoczesny układ pomieszczeń dla 4-5cio osobowej rodziny. Czterospadowy dach, fronton wejściowy z kolumnami i garaż dobudowany do głównej bryły. Budynek posiada wygodne Wnętrze - salon z wyjściem na taras, aneks jadalny z pięknym łukowym wykuszem, częściowo otwarta kuchnia z bardzo przydatnym pomieszczeniem gospodarczym, oraz w drugim skrzydle domu dwa pokoje z łazienką i garderobą, oraz garaż. Na poddaszu dwie sypialnie z łazienką. Poddasze można wykończyć w drugim etapie. Projekt dostępny jest także w odbiciu lustrzanym.
Dbamy o swoich Klientów, jak nikt inny!
Do każdego projektu zakupionego za pośrednictwem serwisu kreoDOM.pl otrzymasz książeczkę z rabatami na zakupy w firmach Komfort, Fachowiec, Domino Łazienki, Komandor, Witek Home i innych. Książeczka na pewno okaże się przydatna podczas urządzania Twojego wymarzonego domu!
Książeczka z rabatami do takich firm jak: Komfort, Domino Łazienki, Fachowiec, Vox, Komandor, Witek Home i innych
Gwarancja
bezpiecznych zakupów
Dodatkowe pakiety projektowe
- Instalacja fotowoltaiczna 429,00 zł
- Instalacja solarna 429,00 zł
- Klimatyzacja w domu 429,00 zł
- Kosztorys inwestorski 499,00 zł
- Kotłownia na paliwo stałe 429,00 zł
- Kominek z DGP 429,00 zł
- Odkurzacz centralny 429,00 zł
- Ogrzewanie podłogowe 429,00 zł
- Płaszcz wodny 429,00 zł
- Pompa ciepła gruntowa 429,00 zł
- Pompa ciepła powietrzna 429,00 zł
- Projekty altan i grillów ogrodowych 549,00 zł
- Projekty ogrodzeń 499,00 zł
- Wentylacja i kominek 429,00 zł
- Wersja elektroniczna z DWG 499,00 zł