Dane techniczne
- Powierzchnia użytkowa 128.40 m²
- Powierzchnia zabudowy 139.00 m²
- Kubatura 886.50 m³
- Kąt nachylenia dachu 40.00°
- Wysokość budynku 8.20 m
- Min. wymiary działki 21.50x20.50 m
- Garaż 37.00 m²
- Pracownia HG ATELIER
Technologia budowy
Ściany:
Ściany zewnętrzne warstwowe:
* pustak ceramiczny MAX 29 cm
* styropian 15 cm
Ściany wewnętrzne:
* cegła kratówka 25 cm (nośne)
* cegła kratówka 12 cm (działowe)
Stropy:
Strop żelbetowy 12 cm, 15 cm
Wykończenie:
Schody żelbetowe wspornikowe
Dach
Konstrukcja dachu drewniana. Kąt nachylenia połaci 40
Opis
Dom jednorodzinny, przeznaczony dla 5 - 6 osobowej rodziny
Budynek wolnostojący, parterowy (niepodpiwniczony) z użytkowym poddaszem. Wersja projektu z garażem dwustanowiskowym.
W budynku zaprojektowano dwie strefy:
* dzienną (parter), w skład której wchodzą - wiatrołap; hall; W.C.; kuchnia; salon; kotłownia i garaż (dwustanowiskowy);
* oraz strefę nocną (poddasze), w której znajdują się cztery sypialnie; łazienka i dwie garderoby.
Budynek o wymiarach 13.5 m
Rzuty
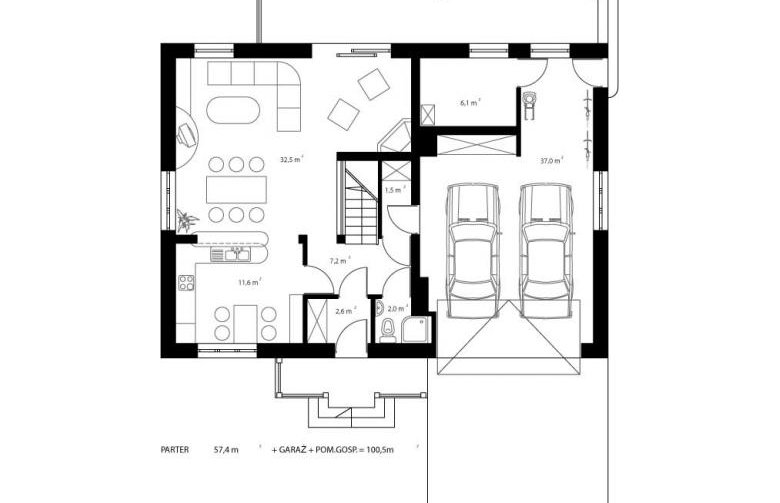
RZUT PARTERU
- Wiatrołap 2,6 m2
- Hall 7,2 m2
- W.C. 2,0 m2
- Kuchnia 11,6 m2
- Salon 32,5 m2
- Przedsionek 1,5 m2
- Kotłownia 6,1 m2
- Garaż 37,0 m2
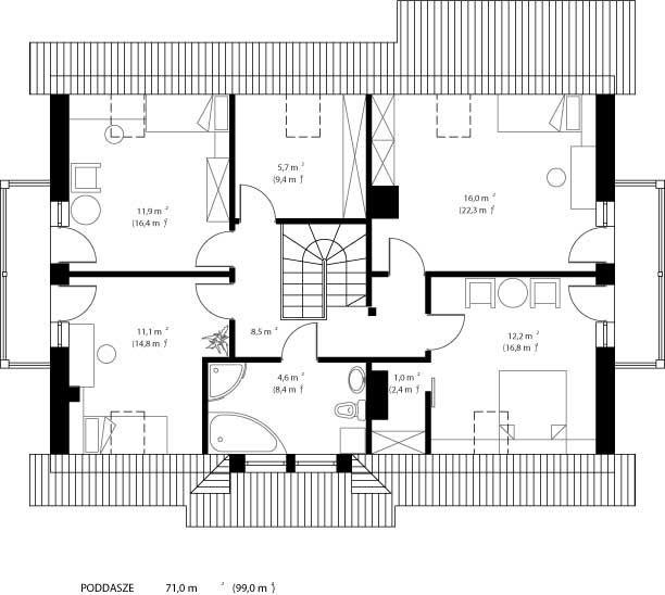
RZUT PODDASZA
- Hall 8,5 m2
- Sypialnia 11,1 m2
- Sypialnia 11,9 m2
- Sypialnia 16,0 m2
- Sypialnia 12,2 m2
- Łazienka 4,6 m2
- Garderoba 5,7 m2
- Garderoba 1,0 m2
Rzuty
RZUT PARTERU
- Wiatrołap 2,6 m2
- Hall 7,2 m2
- W.C. 2,0 m2
- Kuchnia 11,6 m2
- Salon 32,5 m2
- Przedsionek 1,5 m2
- Kotłownia 6,1 m2
- Garaż 37,0 m2
RZUT PODDASZA
- Hall 8,5 m2
- Sypialnia 11,1 m2
- Sypialnia 11,9 m2
- Sypialnia 16,0 m2
- Sypialnia 12,2 m2
- Łazienka 4,6 m2
- Garderoba 5,7 m2
- Garderoba 1,0 m2
Dbamy o swoich Klientów, jak nikt inny!
Do każdego projektu zakupionego za pośrednictwem serwisu kreoDOM.pl otrzymasz książeczkę z rabatami na zakupy w firmach Komfort, Fachowiec, Domino Łazienki, Komandor, Witek Home i innych. Książeczka na pewno okaże się przydatna podczas urządzania Twojego wymarzonego domu!
Książeczka z rabatami do takich firm jak: Komfort, Domino Łazienki, Fachowiec, Vox, Komandor, Witek Home i innych
Gwarancja
bezpiecznych zakupów
Dodatkowe pakiety projektowe
- Kosztorys inwestorski cena ustalana telefonicznie