Dane techniczne
- Powierzchnia użytkowa 174.10 m²
- Powierzchnia zabudowy 182.50 m²
- Kubatura 1055.00 m³
- Kąt nachylenia dachu 40.00°
- Wysokość budynku 8.65 m
- Min. wymiary działki 24.10x21.60 m
- Garaż 38.90 m²
- Pracownia HG ATELIER
Technologia budowy
Ściany:
Ściany zewnętrzne warstwowe:
* pustak ceramiczny MAX 29 cm
* styropian 15 cm
Ściany wewnętrzne:
* cegła kratówka 25 cm (nośne)
* cegła kratówka 12 cm (działowe)
Stropy:
Strop żelbetowy 12 cm
Wykończenie:
Schody żelbetowe wspornikowe;
Dach:
Konstrukcja dachu drewniana. Kąt nachylenia połaci 40
Opis
Dom jednorodzinny, przeznaczony dla 5 - 6 osobowej rodziny
Budynek wolnostojący, parterowy (niepodpiwniczony) z użytkowym poddaszem.
W budynku zaprojektowano dwie strefy:
* dzienną (parter), w skład której wchodzą - wiatrołap; hall; łazienka; kuchnia; salon/jadalnia; pokój; garderoba; spiżarnia; kotłownia i garaż (dwustanowiskowy);
* oraz strefę nocną (poddasze), w której znajdują się trzy sypialnie; pralnia/suszarnia; łazienka; garderoba i dodatkowy pokój (strych).
Budynek o wymiarach 16,0 m
Rzuty
RZUT PARTERU
- Wiatrołap 4,6 m2
- Garderoba 1,1 m2
- Hall 13,6 m2
- Łazienka 3,6 m2
- Kuchnia 12,4 m2
- Spiżarnia 1,1 m2
- Salon/Jadalnia 39,7 m2
- Pokój 10,9 m2
- Pom. gospodarcze 5,3 m2
- Garaż 38,9 m2
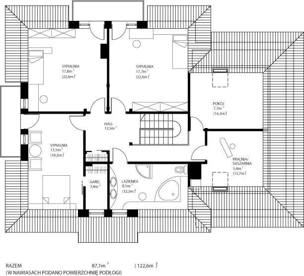
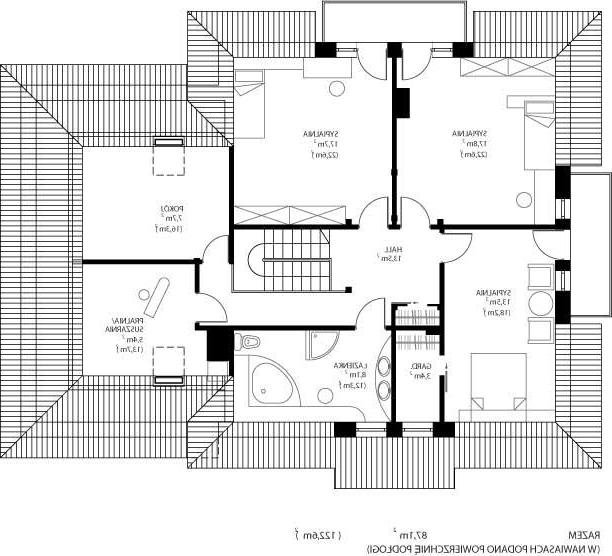
RZUT PODDASZA
- Hall 13,5 m2
- Sypialnia 17,7 m2
- Sypialnia 17,8 m2
- Sypialnia 13,5 m2
- Garderoba 3,4 m2
- Łazienka 8,1 m2
- Pralnia/Suszarnia 5,4 m2
Rzuty
RZUT PARTERU
- Wiatrołap 4,6 m2
- Garderoba 1,1 m2
- Hall 13,6 m2
- Łazienka 3,6 m2
- Kuchnia 12,4 m2
- Spiżarnia 1,1 m2
- Salon/Jadalnia 39,7 m2
- Pokój 10,9 m2
- Pom. gospodarcze 5,3 m2
- Garaż 38,9 m2
RZUT PODDASZA
- Hall 13,5 m2
- Sypialnia 17,7 m2
- Sypialnia 17,8 m2
- Sypialnia 13,5 m2
- Garderoba 3,4 m2
- Łazienka 8,1 m2
- Pralnia/Suszarnia 5,4 m2
Dbamy o swoich Klientów, jak nikt inny!
Do każdego projektu zakupionego za pośrednictwem serwisu kreoDOM.pl otrzymasz książeczkę z rabatami na zakupy w firmach Komfort, Fachowiec, Domino Łazienki, Komandor, Witek Home i innych. Książeczka na pewno okaże się przydatna podczas urządzania Twojego wymarzonego domu!
Książeczka z rabatami do takich firm jak: Komfort, Domino Łazienki, Fachowiec, Vox, Komandor, Witek Home i innych
Gwarancja
bezpiecznych zakupów
Dodatkowe pakiety projektowe
- Kosztorys inwestorski cena ustalana telefonicznie