Dane techniczne
- Powierzchnia użytkowa 103.70 m²
- Powierzchnia zabudowy 112.50 m²
- Kubatura 735.00 m³
- Kąt nachylenia dachu 40.00°
- Wysokość budynku 7.15 m
- Min. wymiary działki 22.50x20.00 m
- Garaż 32.10 m²
- Pracownia HG ATELIER
Technologia budowy
Ściany:
Ściany zewnętrzne warstwowe:
* pustak ceramiczny MAX 29 cm
* styropian 15 cm
Ściany wewnętrzne:
* cegła kratówka 25 cm (nośne)
* cegła kratówka 12 cm (działowe)
Stropy:
Strop gęstożebrowy TERIVA 24 cm
Wykończenie:
Schody drewniane
Dach:
Konstrukcja dachu drewniana, krycie dachówką ceramiczną. Kąt nachylenia połaci 40
Opis
Dom jednorodzinny, przeznaczony dla 4 osobowej rodziny
Budynek wolnostojący, parterowy (niepodpiwniczony) z użytkowym poddaszem.
W budynku zaprojektowano dwie strefy:
* dzienną (parter), w skład której wchodzą - wiatrołap; hall; W.C.; kuchnia; salon; kotłownia i garaż (dwustanowiskowy);
* oraz strefę nocną (poddasze), w której znajdują się trzy sypialnie garderoba i łazienka.
Budynek o wymiarach 12,0 m
Rzuty
RZUT PARTERU
- Wiatrołap 3,1 m2
- Hall 10,4 m2
- W.C. 1,4 m2
- Kuchnia 11,7 m2
- Salon 22,0 m2
- Kotłownia 7,7 m2
- Garaż 32,1 m2
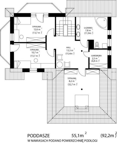
RZUT PODDASZA
- Hall 13,3 m2(15,4
- Sypialnia 12,6 m2
- Sypialnia 10,7 m2
- Sypialnia 8,2 m2
- Garderoba 2,5 m2
- Łazienka 7,8 m2
Rzuty
RZUT PARTERU
- Wiatrołap 3,1 m2
- Hall 10,4 m2
- W.C. 1,4 m2
- Kuchnia 11,7 m2
- Salon 22,0 m2
- Kotłownia 7,7 m2
- Garaż 32,1 m2
RZUT PODDASZA
- Hall 13,3 m2(15,4
- Sypialnia 12,6 m2
- Sypialnia 10,7 m2
- Sypialnia 8,2 m2
- Garderoba 2,5 m2
- Łazienka 7,8 m2
Dbamy o swoich Klientów, jak nikt inny!
Do każdego projektu zakupionego za pośrednictwem serwisu kreoDOM.pl otrzymasz książeczkę z rabatami na zakupy w firmach Komfort, Fachowiec, Domino Łazienki, Komandor, Witek Home i innych. Książeczka na pewno okaże się przydatna podczas urządzania Twojego wymarzonego domu!
Książeczka z rabatami do takich firm jak: Komfort, Domino Łazienki, Fachowiec, Vox, Komandor, Witek Home i innych
Gwarancja
bezpiecznych zakupów
Dodatkowe pakiety projektowe
- Kosztorys inwestorski cena ustalana telefonicznie