Dane techniczne
- Powierzchnia użytkowa 137.80 m²
- Powierzchnia zabudowy 99.00 m²
- Kubatura 684.00 m³
- Kąt nachylenia dachu 40.00°
- Wysokość budynku 8.00 m
- Min. wymiary działki 19.20x17.40 m
- Pracownia HG ATELIER
Technologia budowy
Ściany:
Ściany zewnętrzne warstwowe:
* pustak ceramiczny MAX 29 cm
* styropian 15 cm
Ściany wewnętrzne:
* cegła kratówka 25 cm (nośne)
* cegła kratówka 12 cm (działowe)
Stropy:
Strop gęstożebrowy TERIVA 24 cm
Wykończenie:
Schody żelbetowe wspornikowe
Dach:
Konstrukcja dachu drewniana, krycie dachówką ceramiczną. Kąt nachylenia połaci 40
Opis
Dom jednorodzinny, przeznaczony dla 4 osobowej rodziny
Budynek wolnostojący, parterowy (niepodpiwniczony) z użytkowym poddaszem.
W budynku zaprojektowano dwie strefy:
* dzienną (parter), w skład której wchodzą - wiatrołap; hall; W.C. + C.O.; kuchnia/jadalnia; salon ; gabinet;
* oraz strefę nocną (poddasze), w której znajdują się trzy sypialnie garderoba i łazienka.
Budynek o wymiarach 11,0 m
Rzuty
RZUT PODDASZA
- Hall 12,6 m2
- Sypialnia 16,7 m2
- Sypialnia 11,3 m2
- Sypialnia 11,3 m2
- Łazienka 7,1 m2
- Garderoba 2,2 m2
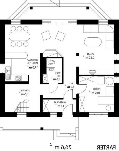
RZUT PARTERU
- Wiatrołap 3,7 m2
- Hall 7,0 m2
- Schody 8,5 m2
- W.C. C.O. 3,6 m2
- Kuchnia/jadalnia 17,0 m2
- Salon 25,9 m2
- Gabinet 10,9 m2
Rzuty
RZUT PODDASZA
- Hall 12,6 m2
- Sypialnia 16,7 m2
- Sypialnia 11,3 m2
- Sypialnia 11,3 m2
- Łazienka 7,1 m2
- Garderoba 2,2 m2
RZUT PARTERU
- Wiatrołap 3,7 m2
- Hall 7,0 m2
- Schody 8,5 m2
- W.C. C.O. 3,6 m2
- Kuchnia/jadalnia 17,0 m2
- Salon 25,9 m2
- Gabinet 10,9 m2
Dbamy o swoich Klientów, jak nikt inny!
Do każdego projektu zakupionego za pośrednictwem serwisu kreoDOM.pl otrzymasz książeczkę z rabatami na zakupy w firmach Komfort, Fachowiec, Domino Łazienki, Komandor, Witek Home i innych. Książeczka na pewno okaże się przydatna podczas urządzania Twojego wymarzonego domu!
Książeczka z rabatami do takich firm jak: Komfort, Domino Łazienki, Fachowiec, Vox, Komandor, Witek Home i innych
Gwarancja
bezpiecznych zakupów
Dodatkowe pakiety projektowe
- Kosztorys inwestorski cena ustalana telefonicznie