Dane techniczne
- Powierzchnia użytkowa 128.00 m²
- Powierzchnia zabudowy 139.00 m²
- Kubatura 744.00 m³
- Kąt nachylenia dachu 35.00°
- Wysokość budynku 8.00 m
- Min. wymiary działki 21.80x21.00 m
- Garaż 20.50 m²
- Pracownia HG ATELIER
Technologia budowy
Ściany:
Ściany zewnętrzne warstwowe:
* pustak ceramiczny MAX 29 cm
* styropian 15 cm
Ściany wewnętrzne:
* cegła kratówka 25 cm (nośne)
* cegła kratówka 12 cm (działowe)
Stropy:
Strop żelbetowy 12 cm
Wykończenie:
Schody żelbetowe
Dach
Konstrukcja dachu drewniana. Kąt nachylenia połaci 35
Opis
Dom jednorodzinny, przeznaczony dla 5-6 osobowej rodziny
Budynek wolnostojący, parterowy (niepodpiwniczony) z użytkowym poddaszem.
W budynku zaprojektowano dwie strefy:
* dzienną (parter), w skład której wchodzą - wiatrołap; hall; łazienka; kuchnia; salon/jadalnia; pokój; kotłowina i garaż;
* oraz strefę nocną (poddasze), w której znajdują się cztery sypialnie i łazienka.
Budynek o wymiarach 14,0 m
Rzuty
RZUT PARTERU
- Wiatrołap 4,7 m2
- Hall 14,3 m2
- Łazienka 4,8 m2
- Kuchnia 11,3 m2
- Salon/Jadalnia 26,2 m2
- Pokój 11,4 m2
- Kotłownia 4,7 m2
- Garaż 20,5 m2
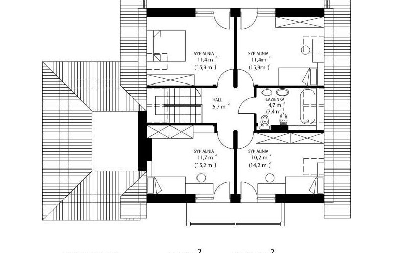
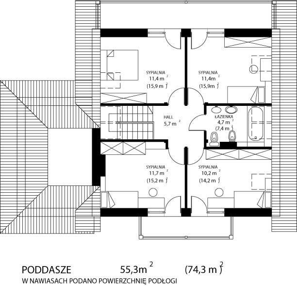
RZUT PODDASZA
- Sypialnia 11,5 m2
- Sypialnia 11,5 m2
- Sypialnia 11,7 m2
- Sypialnia 10,2 m2
- Łazienka 4,7 m2
Rzuty
RZUT PARTERU
- Wiatrołap 4,7 m2
- Hall 14,3 m2
- Łazienka 4,8 m2
- Kuchnia 11,3 m2
- Salon/Jadalnia 26,2 m2
- Pokój 11,4 m2
- Kotłownia 4,7 m2
- Garaż 20,5 m2
RZUT PODDASZA
- Sypialnia 11,5 m2
- Sypialnia 11,5 m2
- Sypialnia 11,7 m2
- Sypialnia 10,2 m2
- Łazienka 4,7 m2
Dbamy o swoich Klientów, jak nikt inny!
Do każdego projektu zakupionego za pośrednictwem serwisu kreoDOM.pl otrzymasz książeczkę z rabatami na zakupy w firmach Komfort, Fachowiec, Domino Łazienki, Komandor, Witek Home i innych. Książeczka na pewno okaże się przydatna podczas urządzania Twojego wymarzonego domu!
Książeczka z rabatami do takich firm jak: Komfort, Domino Łazienki, Fachowiec, Vox, Komandor, Witek Home i innych
Gwarancja
bezpiecznych zakupów
Dodatkowe pakiety projektowe
- Kosztorys inwestorski cena ustalana telefonicznie