Dane techniczne
- Powierzchnia użytkowa 121.10 m²
- Powierzchnia zabudowy 126.00 m²
- Kubatura 728.00 m³
- Kąt nachylenia dachu 37.00°
- Wysokość budynku 7.65 m
- Min. wymiary działki 23.60x18.80 m
- Garaż 1.00 m²
- Pracownia HG ATELIER
Technologia budowy
Ściany:
Ściany zewnętrzne warstwowe:
* pustak ceramiczny MAX 29 cm
* styropian 15 cm
Ściany wewnętrzne:
* cegła kratówka 25 cm (nośne)
* cegła kratówka 12 cm (działowe)
Stropy:
Strop żelbetowy 12 cm
Wykończenie:
Schody żelbetowe
Dach
Konstrukcja dachu drewniana. Kąt nachylenia połaci 37
Opis
Dom jednorodzinny, przeznaczony dla 5 osobowej rodziny
Budynek wolnostojący, parterowy (niepodpiwniczony) z użytkowym poddaszem.
W budynku zaprojektowano dwie strefy:
* dzienną (parter), w skład której wchodzą - wiatrołap; hall; W.C.; kuchnia; spiżarnia; salon; garaż i pomieszczenie. gospodarcze;
* oraz strefę nocną (poddasze), w której znajdują się trzy sypialnie; dwie garderoby; łazienka i pralnia.
Budynek o wymiarach 14,0 m
Rzuty
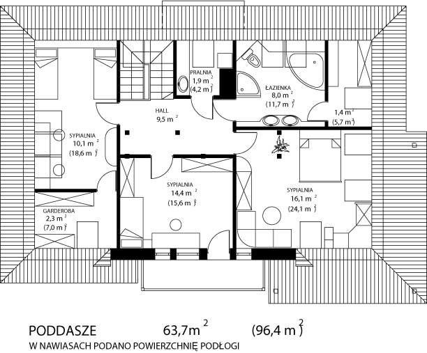
RZUT PODDASZA
- Hall 9,5 m2
- Sypialnia 10,1 m2
- Garderoba 2,3 m2
- Sypialnia 14,4 m2
- Sypialnia 16,1 m2
- Łazienka 8,0 m2
- Garderoba 1,4 m2
- Pralnia 1,9 m2
RZUT PARTERU
- Wiatrołap 5,0 m2
- Hall schody 11,8 m2
- W.C. 1,4 m2
- Kuchnia 13,2 m2
- Salon 26,0 m2
- Pomieszczenie gospodarcze 3,9 m2
- Spiżarnia 1,4 m2
- Garaż 18,8 m2
Rzuty
RZUT PODDASZA
- Hall 9,5 m2
- Sypialnia 10,1 m2
- Garderoba 2,3 m2
- Sypialnia 14,4 m2
- Sypialnia 16,1 m2
- Łazienka 8,0 m2
- Garderoba 1,4 m2
- Pralnia 1,9 m2
RZUT PARTERU
- Wiatrołap 5,0 m2
- Hall schody 11,8 m2
- W.C. 1,4 m2
- Kuchnia 13,2 m2
- Salon 26,0 m2
- Pomieszczenie gospodarcze 3,9 m2
- Spiżarnia 1,4 m2
- Garaż 18,8 m2
Dbamy o swoich Klientów, jak nikt inny!
Do każdego projektu zakupionego za pośrednictwem serwisu kreoDOM.pl otrzymasz książeczkę z rabatami na zakupy w firmach Komfort, Fachowiec, Domino Łazienki, Komandor, Witek Home i innych. Książeczka na pewno okaże się przydatna podczas urządzania Twojego wymarzonego domu!
Książeczka z rabatami do takich firm jak: Komfort, Domino Łazienki, Fachowiec, Vox, Komandor, Witek Home i innych
Gwarancja
bezpiecznych zakupów
Dodatkowe pakiety projektowe
- Kosztorys inwestorski cena ustalana telefonicznie