Dane techniczne
- Powierzchnia użytkowa 146.10 m²
- Powierzchnia zabudowy 131.90 m²
- Kubatura 785.00 m³
- Kąt nachylenia dachu 40.00°
- Wysokość budynku 7.60 m
- Min. wymiary działki 21.80x20.30 m
- Garaż 18.00 m²
- Pracownia HG ATELIER
Technologia budowy
Ściany:
Ściany zewnętrzne warstwowe:
* pustak ceramiczny MAX 29 cm
* styropian 15 cm
Ściany wewnętrzne:
* cegła kratówka 25 cm (nośne)
* cegła kratówka 12 cm (działowe)
Stropy:
Strop żelbetowy 15 cm
Wykończenie:
Schody żelbetowe wspornikowe
Dach
Konstrukcja dachu drewniana. Kąt nachylenia połaci 40
Opis
Dom jednorodzinny, przeznaczony dla 5-6 osobowej rodziny
Budynek wolnostojący, parterowy (niepodpiwniczony) z użytkowym poddaszem.
W budynku zaprojektowano dwie strefy:
* dzienną (parter), w skład której wchodzą - wiatrołap; hall; w.c.; kuchnia; spiżarnia; salon/jadalnia; gabinet; garaż i kotłownia
* oraz strefę nocną (poddasze), w której znajdują się cztery sypialnie, dwie łazienki i garderoba.
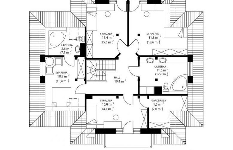
Rzuty
RZUT PODDASZA
- Hall 10,4 m2
- Sypialnia 10,5 m2
- Łazienka 2,6 m2
- Sypialnia 11,4 m2
- Sypialnia 11,3 m2
- Sypialnia 10,8 m2
- Garderoba 1,5 m2
- Łazienka 11,6 m2
RZUT PARTERU
- Wiartołap 3,1 m2
- Hall schody 10,7 m2
- W.C. 1,4 m2
- Gabinet 12,2 m2
- Kuchnia 11,0 m2
- Spiżarnia 1,8 m2
- Salon 35,8 m2
- Kotłownia 4,4 m2
- Garaż 18,0 m2
Rzuty
RZUT PODDASZA
- Hall 10,4 m2
- Sypialnia 10,5 m2
- Łazienka 2,6 m2
- Sypialnia 11,4 m2
- Sypialnia 11,3 m2
- Sypialnia 10,8 m2
- Garderoba 1,5 m2
- Łazienka 11,6 m2
RZUT PARTERU
- Wiartołap 3,1 m2
- Hall schody 10,7 m2
- W.C. 1,4 m2
- Gabinet 12,2 m2
- Kuchnia 11,0 m2
- Spiżarnia 1,8 m2
- Salon 35,8 m2
- Kotłownia 4,4 m2
- Garaż 18,0 m2
Dbamy o swoich Klientów, jak nikt inny!
Do każdego projektu zakupionego za pośrednictwem serwisu kreoDOM.pl otrzymasz książeczkę z rabatami na zakupy w firmach Komfort, Fachowiec, Domino Łazienki, Komandor, Witek Home i innych. Książeczka na pewno okaże się przydatna podczas urządzania Twojego wymarzonego domu!
Książeczka z rabatami do takich firm jak: Komfort, Domino Łazienki, Fachowiec, Vox, Komandor, Witek Home i innych
Gwarancja
bezpiecznych zakupów
Dodatkowe pakiety projektowe
- Kosztorys inwestorski cena ustalana telefonicznie