Dane techniczne
- Powierzchnia użytkowa 108.40 m²
- Powierzchnia zabudowy 96.10 m²
- Kubatura 568.00 m³
- Kąt nachylenia dachu 40.00°
- Wysokość budynku 8.07 m
- Min. wymiary działki 16.60x19.90 m
- Garaż 19.30 m²
- Pracownia Krajobrazy
Technologia budowy
Ściany budynku zaprojektowano z betonu komórkowego z dociepleniem lub w innej technologii w ramach adaptacji. Strop gęstożebrowy, więźba drewniana, pokrycie dachówką ceramiczną lub cementową. Inne pokrycia w ramach adaptacji. Elewacje tynkowane, fragmenty okładane płytką kamienną lub klinkierową, albo wariantowo w całości tynkowane.
Opis
Budynek niepodpiwniczony, piętrowy, z jednostanowiskowym garażem wbudowanym. Parter zwraca uwagę atrakcyjną strefą dzienną z wykuszem przy jadalni, funkcjonalną spiżarką przy kuchni oraz szerokim przeszkleniem prowadzącym na taras ogrodowy. Poddasze pod stromym dachem dwuspadowym mieści 3 duże pokoje oraz wygodną łazienkę. Dokumentacja dostępna również w odbiciu lustrzanym.
Ekonomiczny, zwarty dom z dachem dwuspadowym, z wejściem podkreślonym przez okrągłe okno, daszek i okładzinę fragmentu ściany. Część tarasu od strony ogrodu jest praktycznie zadaszona przedłużoną połacią dachu.
Rzuty
1. wiatrołap 5.2m2
2. hall 9.1m2
3. pokój dzienny z kuchnią
33.3m2
4. spiżarnia 2.0m2
5. wc 1.5m2
6. pom. gospodarcze 6.2m2
7. garaż 19.3m2
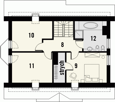
8. hall 5.9m2
9. pokój 12.8m2
10. pokój 11.2m2
11. pokój 12.8m2
12. łazienka 8.4m2
13. strych
Rzuty
1. wiatrołap 5.2m2
2. hall 9.1m2
3. pokój dzienny z kuchnią
33.3m2
4. spiżarnia 2.0m2
5. wc 1.5m2
6. pom. gospodarcze 6.2m2
7. garaż 19.3m2
8. hall 5.9m2
9. pokój 12.8m2
10. pokój 11.2m2
11. pokój 12.8m2
12. łazienka 8.4m2
13. strych
Dbamy o swoich Klientów, jak nikt inny!
Do każdego projektu zakupionego za pośrednictwem serwisu kreoDOM.pl otrzymasz książeczkę z rabatami na zakupy w firmach Komfort, Fachowiec, Domino Łazienki, Komandor, Witek Home i innych. Książeczka na pewno okaże się przydatna podczas urządzania Twojego wymarzonego domu!
Książeczka z rabatami do takich firm jak: Komfort, Domino Łazienki, Fachowiec, Vox, Komandor, Witek Home i innych
Gwarancja
bezpiecznych zakupów
Dodatkowe pakiety projektowe
- Kosztorys inwestorski 950 zł
- Zielony pakiet z pompą ciepła 750 zł
- Aktualizacja do WT2021 850 zł