Dane techniczne
- Powierzchnia użytkowa 97.40 m²
- Powierzchnia zabudowy 86.70 m²
- Kubatura 497.00 m³
- Kąt nachylenia dachu 40.00°
- Wysokość budynku 8.06 m
- Min. wymiary działki 16.60x18.10 m
- Garaż 19.30 m²
- Pracownia Krajobrazy
Technologia budowy
Opis
Iskra 2 jest inaczej wykończonym wariantem domku Iskra. Oba projekty mają nowoczesną kolorystykę i detale wykończeń. Kompaktowa bryła domu charakteryzuje się tanią konstrukcją, co zapewni niskie koszty budowy i utrzymania. Pod dwuspadowym dachem do dyspozycji jest wygodne, doświetlone klasycznymi oknami w szczytach poddasze, podzielone na trzy pokoje oraz wygodną łazienkę. Parter to salon połączony z kuchnią, wc pod schodami oraz garaż jednostanowiskowy i pomieszczenie gospodarcze. Wokół dużego okna w salonie zaprojektowano drewnianą ramę, która stanowi jednocześnie zadaszenie części tarasu. Na niecałych 100m2 powierzchni użytkowej domek oferuje wszystkie potrzebne kilkuosobowej rodzinie pomieszczenia, a to wszystko za naprawdę niewielkie pieniądze. Dokumentacja dostępna też w wersji lustrzanej. Dom zaprojektowano ze ścianami warstwowymi z betonu komórkowego z dociepleniem. Strop międzypiętrowy gęstożebrowy typu Teriva. Elewacje tynkowane. Rama wokół wejścia i okna tarasowego drewniana. Fragmenty ścian obłożone płytkami klinkierowymi. Pokrycie dachu można zastosować dowolne: dachówkę cementową albo ceramiczną lub też inny materiał wybrany na etapie adaptacji. Dopuszcza się wprowadzenie zmian wszystkich materiałów na inne, wybrane przez inwestora.
Rzuty
1. wiatrołap 3.9m2
2. hall 3.2m2
3. p. dzienny z kuchnią 32.0m2
4. wc 1.5m2
5. spiżarnia 1.0m2
6. pom. gosp. 6.2m2
7. garaż 19.3m2
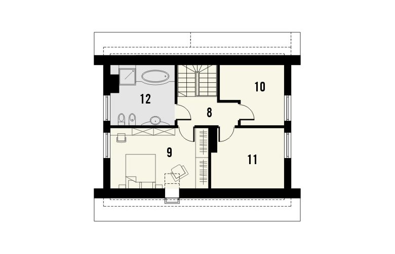
8. hall 4.8m2
9. pokój z gard. 15.4m2
10. pokój 8.6m2
11. pokój 11.0m2
12. łazienka 9.8m2
Rzuty
1. wiatrołap 3.9m2
2. hall 3.2m2
3. p. dzienny z kuchnią 32.0m2
4. wc 1.5m2
5. spiżarnia 1.0m2
6. pom. gosp. 6.2m2
7. garaż 19.3m2
8. hall 4.8m2
9. pokój z gard. 15.4m2
10. pokój 8.6m2
11. pokój 11.0m2
12. łazienka 9.8m2
Dbamy o swoich Klientów, jak nikt inny!
Do każdego projektu zakupionego za pośrednictwem serwisu kreoDOM.pl otrzymasz książeczkę z rabatami na zakupy w firmach Komfort, Fachowiec, Domino Łazienki, Komandor, Witek Home i innych. Książeczka na pewno okaże się przydatna podczas urządzania Twojego wymarzonego domu!
Książeczka z rabatami do takich firm jak: Komfort, Domino Łazienki, Fachowiec, Vox, Komandor, Witek Home i innych
Gwarancja
bezpiecznych zakupów
Dodatkowe pakiety projektowe
- Kosztorys inwestorski 950 zł
- Zielony pakiet z pompą ciepła 750 zł
- Aktualizacja do WT2021 850 zł