Dane techniczne
- Powierzchnia użytkowa 156.72 m²
- Powierzchnia zabudowy 253.82 m²
- Kąt nachylenia dachu 25.00°
- Powierzchnia dachu 360.00 m²
- Wysokość budynku 5.50 m
- Min. wymiary działki 29.18x25.00 m
- Pracownia Autorska Pracownia Projektowa Projektyka Joanna Ratajczak
Technologia budowy
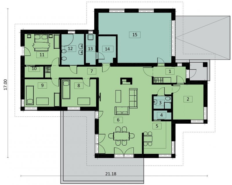
| Lp |
Nazwa pomieszczenia |
Pow. użytkowa |
| 1 |
wiatrołap |
7,13 m2 |
| 2 |
pokój |
13,71 m2 |
| 3 |
wc |
3,12 m2 |
| 4 |
spiżarnia |
2,29 m2 |
| 5 |
kuchnia |
11,37 m2 |
| 6 |
salon + jadalnia |
45,20 m2 |
| 7 |
komunikacja |
21,88 m2 |
| 8 |
pokój |
12,70 m2 |
| 9 |
pokój |
12,86 m2 |
| 10 |
garderoba |
2,90 m2 |
| 11 |
pokój |
14,28 m2 |
| 12 |
łazienka |
9,28 m2 |
| Pow. użytkowa |
156,72 m2 |
| 13 |
pralnia |
4,39 m2 |
| 14 |
pom. gospodarcze |
6,02 m2 |
| 15 |
garaż |
41,22 m2 |
| Pow. razem |
208,35 m2
|
Opis
Ka10 parterowy dom z garażem dwustanowiskowym.
W budynku zaprojektowano wydzieloną kuchnie z przestronnym salonem, trzy sypialnie z garderobą oraz dodatkowym pokojem na froncie domu.
Dbamy o swoich Klientów, jak nikt inny!
Do każdego projektu zakupionego za pośrednictwem serwisu kreoDOM.pl otrzymasz książeczkę z rabatami na zakupy w firmach Komfort, Fachowiec, Domino Łazienki, Komandor, Witek Home i innych. Książeczka na pewno okaże się przydatna podczas urządzania Twojego wymarzonego domu!
Książeczka z rabatami do takich firm jak: Komfort, Domino Łazienki, Fachowiec, Vox, Komandor, Witek Home i innych
Gwarancja
bezpiecznych zakupów
Dodatkowe pakiety projektowe