Dane techniczne
- Powierzchnia użytkowa 203.14 m²
- Powierzchnia zabudowy 160.16 m²
- Kąt nachylenia dachu 5.00°
- Powierzchnia dachu 144.15 m²
- Wysokość budynku 7.50 m
- Min. wymiary działki 18.64x23.00 m
- Pracownia Autorska Pracownia Projektowa Projektyka Joanna Ratajczak
Technologia budowy
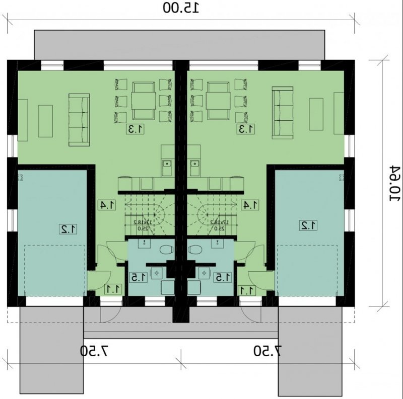
| Lp |
Nazwa pomieszczenia |
Pow. użytkowa |
| 1 |
wiatrołap |
1,69 m2 |
| 3 |
pokój z aneksem |
31,69 m2 |
| 4 |
schody i komunikacja |
7,90m2 |
| 5 |
łazienka |
4,73 m2 |
| Pow. użytkowa M1: |
46,01 m2 |
| 2 |
garaż |
17,01 m2 |
| Pow. razem M1: |
63,02 m2 |
| Lp |
Nazwa pomieszczenia |
Pow. użytkowa |
| 1 |
wiatrołap |
1,69 m2 |
| 3 |
pokój z aneksem |
31,69 m2 |
| 4 |
schody i komunikacja |
7,90m2 |
| 5 |
łazienka |
4,73 m2 |
| Pow. użytkowa M2: |
46,01 m2 |
| 2 |
garaż |
17,01 m2 |
| Pow. razem M2: |
63,02 m2 |
Opis
Nowoczesny ekonomiczny budynek mieszkalny na wąską działkę, dla dwóch czteroosobowych rodzin.
Mozliwość budowania na bardzo wąskiej działce.
Uniwersalny kształt budynku daje możliwośc bliźniaczenia z obu stron, możliwość budowy w zabudowie szeregowej, budynek może występować jako jeden segment.
Dbamy o swoich Klientów, jak nikt inny!
Do każdego projektu zakupionego za pośrednictwem serwisu kreoDOM.pl otrzymasz książeczkę z rabatami na zakupy w firmach Komfort, Fachowiec, Domino Łazienki, Komandor, Witek Home i innych. Książeczka na pewno okaże się przydatna podczas urządzania Twojego wymarzonego domu!
Książeczka z rabatami do takich firm jak: Komfort, Domino Łazienki, Fachowiec, Vox, Komandor, Witek Home i innych
Gwarancja
bezpiecznych zakupów
Dodatkowe pakiety projektowe