Dane techniczne
- Powierzchnia użytkowa 112.19 m²
- Powierzchnia zabudowy 183.43 m²
- Kąt nachylenia dachu 30.00°
- Powierzchnia dachu 266.30 m²
- Wysokość budynku 7.00 m
- Min. wymiary działki 19.04x23.65 m
- Pracownia Autorska Pracownia Projektowa Projektyka Joanna Ratajczak
Technologia budowy
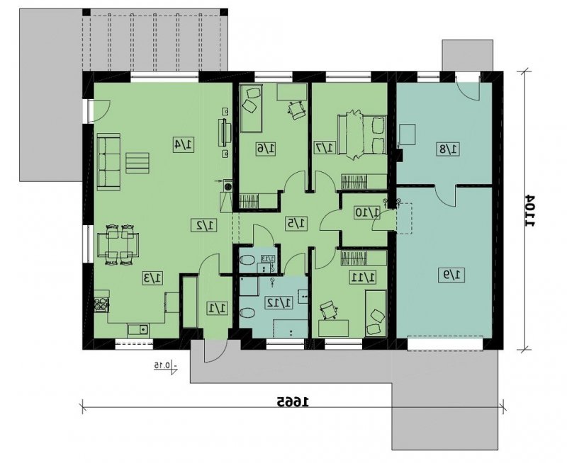
| Lp |
Nazwa pomieszczenia |
Pow. użytkowa |
| 1 |
wiatrołap |
4,11 m2 |
| 2 |
holl |
5,18 m2 |
| 3 |
kuchnia z jadalnią |
17,42 m2 |
| 4 |
salon |
28,12 m2 |
| 5 |
holl |
8,3 m2 |
| 6 |
sypialnia |
13,01 m2 |
| 7 |
sypialnia |
13,01 m2 |
| 10 |
garderoba |
3,82 m2 |
| 11 |
sypialnia |
10,75 m2 |
| 12 |
łazienka |
6,74 m2 |
| 13 |
wc |
1,63 m2 |
| Pow użytkowa |
112,19 m2 |
| 8 |
pom. gospodarcze |
15,48 m2 |
| 9 |
garaż |
22,96 m2 |
| RAZEM |
150,63 m2
|
Opis
Jest to dom bardzo tani w budowie, atutem jest możliwość dowolnej aranżacji powierzchni.
Parterowy dom jednorodzinny z trzema przestronnymi sypialniami dla 4 -5 osobowej rodziny. Dom posiada garaż jednostanowiskowy, kuchnię z jadalnią, salon, łazienkę i wc, garderobę oraz pomieszczenie gospodarcze.
Dbamy o swoich Klientów, jak nikt inny!
Do każdego projektu zakupionego za pośrednictwem serwisu kreoDOM.pl otrzymasz książeczkę z rabatami na zakupy w firmach Komfort, Fachowiec, Domino Łazienki, Komandor, Witek Home i innych. Książeczka na pewno okaże się przydatna podczas urządzania Twojego wymarzonego domu!
Książeczka z rabatami do takich firm jak: Komfort, Domino Łazienki, Fachowiec, Vox, Komandor, Witek Home i innych
Gwarancja
bezpiecznych zakupów
Dodatkowe pakiety projektowe