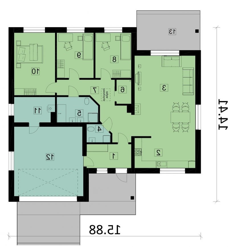
| Lp | Nazwa pomieszczenia | Pow. użytkowa |
|---|---|---|
| 1 | wiatrołap | 7,44 m2 |
| 2 | kuchnia | 12,90 m2 |
| 3 | salon + jadalnia | 34,64 m2 |
| 4 | wc | 2,73 m2 |
| 5 | łazienka | 7,06 m2 |
| 6 | garderoba | 2,52 m2 |
| 7 | korytarz | 14,51 m2 |
| 8 | sypialnia | 11,30 m2 |
| 9 | sypialnia | 11,54 m2 |
| 10 | sypialnia | 17,76 m2 |
| pow. użytkowa | 122,40 m2 | |
| 11 | kotłownia | 6,96 m2 |
| 12 | garaż | 32,71 m2 |
| 13 | taras | 17,35 m2 |
Ka17 to przestrzenny dom parterowy dla 4-5 osobowej rodziny z dwustanowiskowym garażem wbudowanym w bryłę budynku.
Część dzienna składa się z dużego salonu z jadalnią i przestronnej kuchni oraz osobnej toalety dla gości. Szeroki holl prowadzi do części sypialnianej, składającej się z 3 dużych sypialni i łazienki oraz małej garderoby. Przejście do części gospodarczej tj. garażu i kotłowni prowadzi bezpośrednio z wiatrołapu.
Dzięki zastosowaniu lekkiej konstrukcji dachu na wiązarach budynek bardzo ekonomiczny w budowie mimo swojej wielkości.