Dane techniczne
- Powierzchnia użytkowa 103.56 m²
- Powierzchnia zabudowy 141.84 m²
- Kąt nachylenia dachu 30.00°
- Powierzchnia dachu 234.93 m²
- Wysokość budynku 7.09 m
- Min. wymiary działki 18.94x23.04 m
- Pracownia Autorska Pracownia Projektowa Projektyka Joanna Ratajczak
Technologia budowy
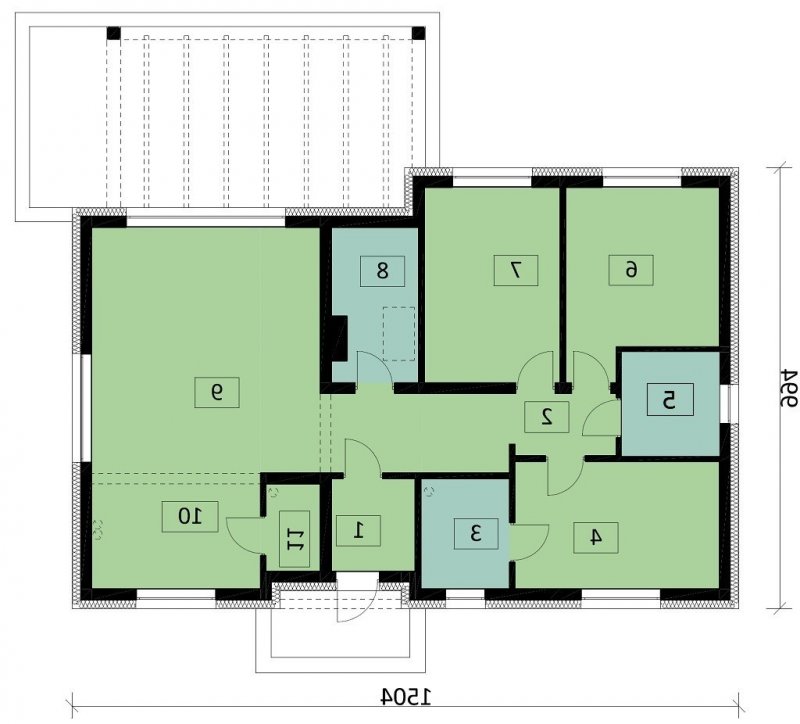
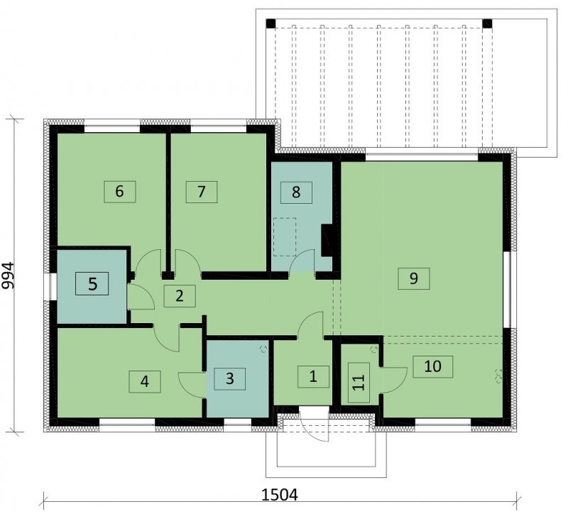
| Lp |
Nazwa pomieszczenia |
Pow. użytkowa |
| 1 |
wiatrołap |
3,97m2 |
| 2 |
holl |
10,62 m2 |
| 3 |
łazienka |
5,00 m2 |
| 4 |
sypialnia |
13,28 m2 |
| 5 |
łazienka |
5,15 m2 |
| 6 |
sypialnia |
13,42 m2 |
| 7 |
sypialnia |
13,54 m2 |
| 9 |
salon |
28,75 m2 |
| 10 |
kuchnia |
9,83 m2 |
| Pow. użytkowa |
103,56 m2 |
| 8 |
pom. gospodarcze |
6,95 m2 |
| 11 |
spiżarnia |
2,42 m2 |
| Pow. razem |
112,93 m2 |
Opis
Ka21 to budynek tani w budowie z czterospadowym dachem.
Dom w strefie nocnej posiada 3 sypialnie oraz 2 łazienki, w którym swobodnie będzie czuła się 4-5 osobowa rodzina. Natomiast w strefie dziennej zaprojektowano przestrzenny salon z wyjściem na taras oraz kuchnię. Dodatkowym udogodnieniem jest spiżarnia, a także pomieszczenie gospodarcze do dowolnego wykorzystania.
Dbamy o swoich Klientów, jak nikt inny!
Do każdego projektu zakupionego za pośrednictwem serwisu kreoDOM.pl otrzymasz książeczkę z rabatami na zakupy w firmach Komfort, Fachowiec, Domino Łazienki, Komandor, Witek Home i innych. Książeczka na pewno okaże się przydatna podczas urządzania Twojego wymarzonego domu!
Książeczka z rabatami do takich firm jak: Komfort, Domino Łazienki, Fachowiec, Vox, Komandor, Witek Home i innych
Gwarancja
bezpiecznych zakupów
Dodatkowe pakiety projektowe