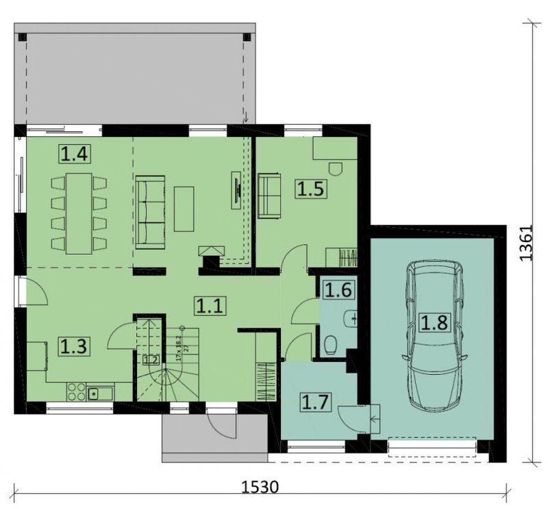
| Lp | Nazwa pomieszczenia | Pow. użytkowa |
|---|---|---|
| 1 | holl | 17,60 m2 |
| 2 | schowek | 2,02 m2 |
| 3 | kuchnia | 12,93 m2 |
| 4 | salon/jadalnia | 28,30 m2 |
| 5 | pokój | 12,84 m2 |
| 6 | WC | 3,02 m2 |
| Pow. użytkowa | 76,71 m2 | |
| 7 | kotłownia | 5,84 m2 |
| 8 | garaż | 24,09 m2 |
| Pow. ogółem | 106,64 m2 | |
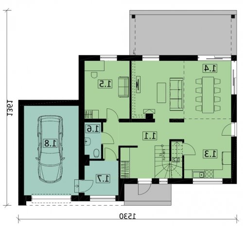
Ka24 to nowoczesny parterowy dom z poddaszem użytkowym z wbudowanym garażem jednostanowiskowym.
Na parterze znajdujemy przestronny otwarty holl wejściowy prowadzący do dużego salonu z otwartą kuchnią.
Przy kuchni pod wyższa częścią biagu schodowego zlokalizowano mały schowek mogący pełnić rolę spiżarni.
Dużym atutem jest dodtakowy pokój na parterze, który może pełnić rolę gabinetu lub pokoju dla seniora
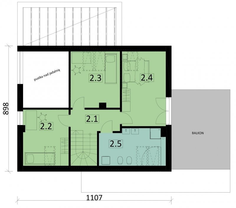
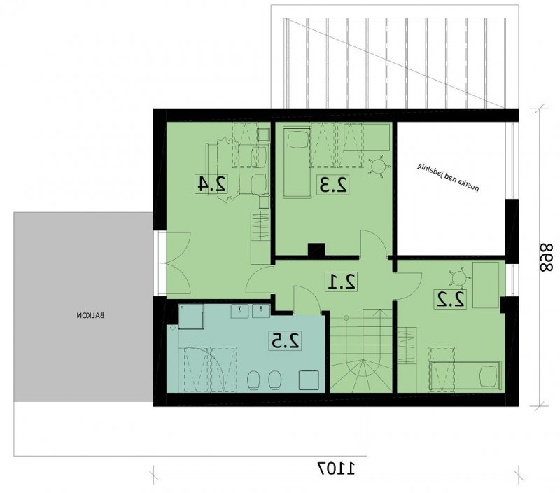
Na poddaszu zaprojektowano trzy sypialnie z dużą łazienką.
Ogromną zaletą projektu jest przestronny balkon nad garażem, który może pełnić miejsce do wypoczynku i wspólnego grillowania w przypadku małej działki.