Dane techniczne
- Powierzchnia użytkowa 99.39 m²
- Powierzchnia zabudowy 103.47 m²
- Kąt nachylenia dachu 35.00°
- Powierzchnia dachu 116.43 m²
- Wysokość budynku 7.44 m
- Min. wymiary działki 16.50x20.10 m
- Pracownia Autorska Pracownia Projektowa Projektyka Joanna Ratajczak
Technologia budowy
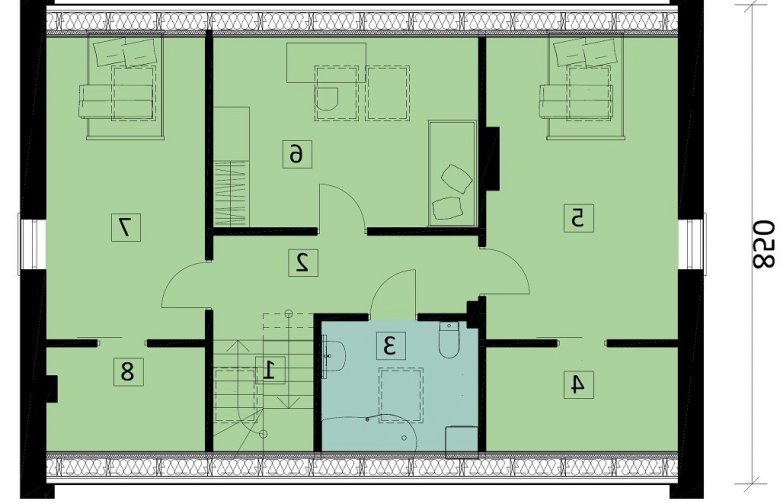
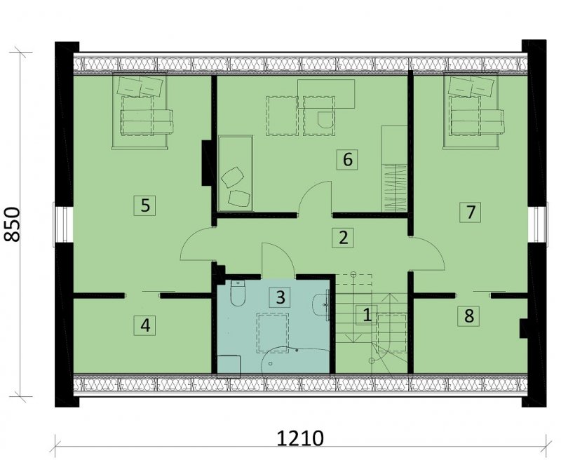
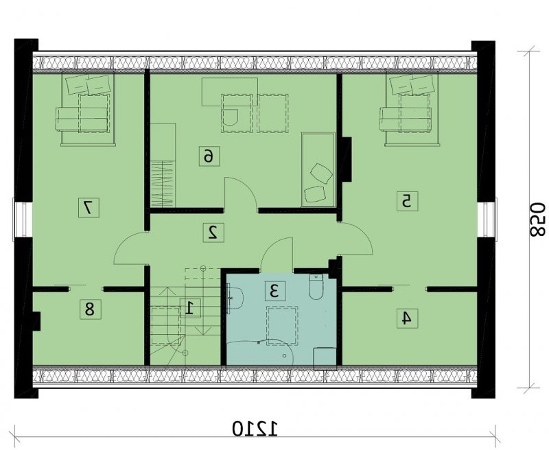
| Lp |
Nazwa pomieszczenia |
Pow. użytkowa |
| 1 |
sień |
4,31 m2 |
| 2 |
korytarz |
1,97 m2 |
| 3 |
schody |
4,62 m2 |
| 4 |
kuchnia |
7,33 m2 |
| 5 |
salon z jadalnią |
29,17 m2 |
| 6 |
wc |
1,62 m2 |
| Pow. użytkowa |
47,40 m2 |
| 7 |
garaż |
17,27 m2 |
| 8 |
kotłownia |
6,71 m2 |
| Pow. razem |
72,80 m2
|
Opis
Ka25 to mały dom parterowy z poddaszem użytkowym i garażem jednostanowiskowym dla 4-5 osobowej rodziny.
Projekt gotowy w nowoczesnej stylistyce, który na powierzchni użytkowej 100 m2 zmieścił przestronny salon z otwartą kuchnią, trzy przestronne sypialnie oraz dużą łazienkę.
Ka25 mimo małej powierzchni, jest w stanie spełnić oczekiwania najbardziej wymagającej rodziny.
Dbamy o swoich Klientów, jak nikt inny!
Do każdego projektu zakupionego za pośrednictwem serwisu kreoDOM.pl otrzymasz książeczkę z rabatami na zakupy w firmach Komfort, Fachowiec, Domino Łazienki, Komandor, Witek Home i innych. Książeczka na pewno okaże się przydatna podczas urządzania Twojego wymarzonego domu!
Książeczka z rabatami do takich firm jak: Komfort, Domino Łazienki, Fachowiec, Vox, Komandor, Witek Home i innych
Gwarancja
bezpiecznych zakupów
Dodatkowe pakiety projektowe