Dane techniczne
- Powierzchnia użytkowa 132.44 m²
- Powierzchnia zabudowy 103.25 m²
- Kąt nachylenia dachu 5.00°
- Powierzchnia dachu 132.11 m²
- Wysokość budynku 7.17 m
- Min. wymiary działki 21.00x16.24 m
- Pracownia Autorska Pracownia Projektowa Projektyka Joanna Ratajczak
Technologia budowy
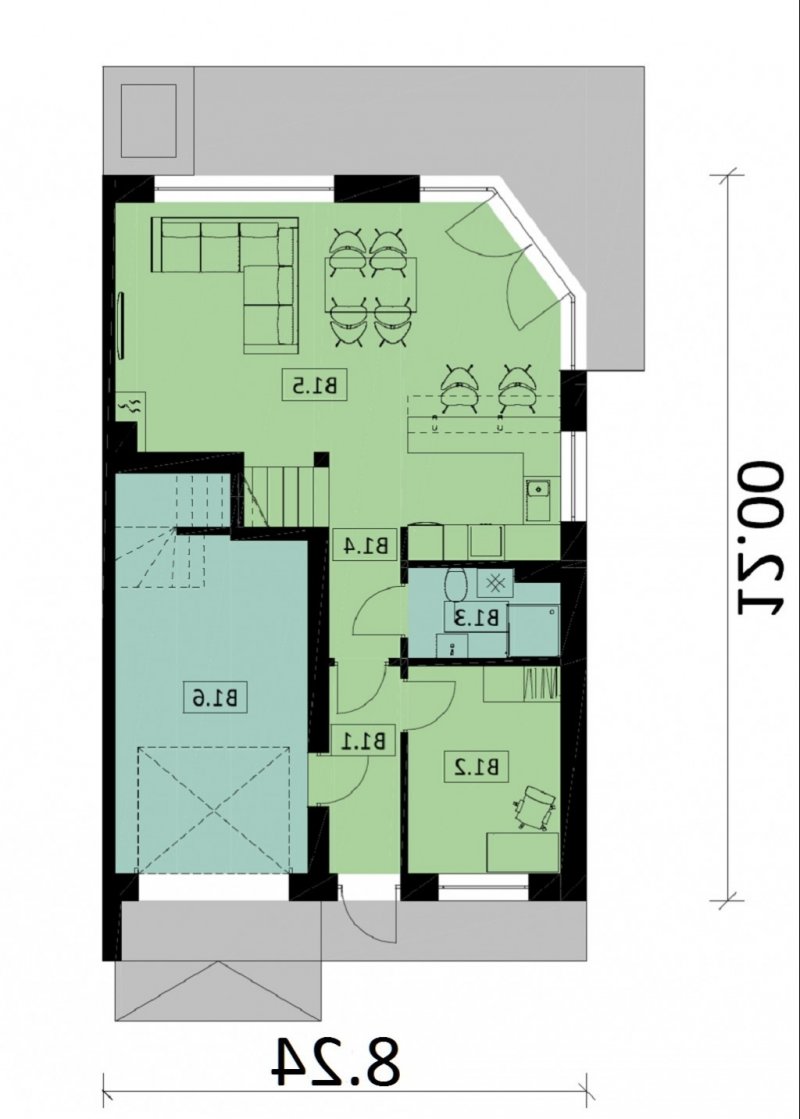
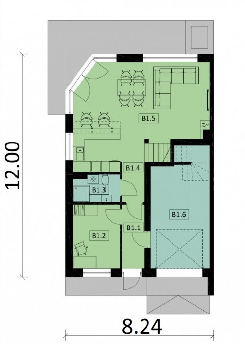
| Lp |
Nazwa pomieszczenia |
Pow. użytkowa |
| 1B |
wiatrołap |
4,14 m2 |
| 2B |
pokój |
8,70 m2 |
| 3B |
wc |
3,60 m2 |
| 4B |
holl |
3,80 m2 |
| 5B |
salon z aneksem |
34,56 m2 |
| 6B |
garaż |
18,33 m2 |
| Powierzchnia parteru - lokal B |
73,39 m2 |
Opis
Ka31S to nowoczesny dom dwulokalowy. Parter to część dzienna budynku, z którego składa się m. in. salon z aneksem kuchennym, toaleta oraz dodatkowy pokój. Natomiast piętro to część nocna z 3 sypialniami, 2 łazienkami oraz garderobą.
Dom dostępny również jako bliźniak Ka31.
Dbamy o swoich Klientów, jak nikt inny!
Do każdego projektu zakupionego za pośrednictwem serwisu kreoDOM.pl otrzymasz książeczkę z rabatami na zakupy w firmach Komfort, Fachowiec, Domino Łazienki, Komandor, Witek Home i innych. Książeczka na pewno okaże się przydatna podczas urządzania Twojego wymarzonego domu!
Książeczka z rabatami do takich firm jak: Komfort, Domino Łazienki, Fachowiec, Vox, Komandor, Witek Home i innych
Gwarancja
bezpiecznych zakupów
Dodatkowe pakiety projektowe