Dane techniczne
- Powierzchnia użytkowa 126.06 m²
- Powierzchnia zabudowy 128.88 m²
- Kąt nachylenia dachu 20.00°
- Powierzchnia dachu 195.85 m²
- Wysokość budynku 8.08 m
- Min. wymiary działki 19.24x20.97 m
- Pracownia Autorska Pracownia Projektowa Projektyka Joanna Ratajczak
Technologia budowy
| Lp |
Nazwa pomieszczenia |
Pow. użytkowa |
| 1 |
wiatrołap |
5,28 m2 |
| 2 |
WC |
2,16 m2 |
| 3 |
korytarz |
6,71 m2 |
| 4 |
salon + jadalnia |
35,27 m2 |
| 5 |
kuchnia |
9,46 m2 |
| 6 |
schowek |
1,92 m2 |
| Pow. użytkowa |
60,80 m2 |
| 7 |
kotłownia |
7,85 m2 |
| 8 |
garaż |
24,52 m2
|
Opis
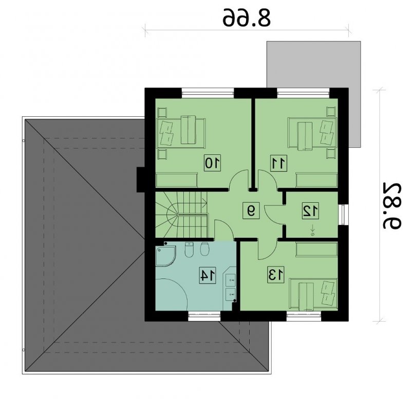
Ka35 średniej wielkości nowoczesny dom piętrowy. Część dzienną stanowi salon z jadalnią i otwartą kuchnią, schowkiem łazienką. Cześć nocną zlokalizowana na piętrze domu, składa się z trzech przestronnych sypialni, dużej łazienki i garderoby.
Uzupełnieniem domu jest duży garaż jednostanowiskowy z przestronnym pomieszczeniem gospodarczym.
Dbamy o swoich Klientów, jak nikt inny!
Do każdego projektu zakupionego za pośrednictwem serwisu kreoDOM.pl otrzymasz książeczkę z rabatami na zakupy w firmach Komfort, Fachowiec, Domino Łazienki, Komandor, Witek Home i innych. Książeczka na pewno okaże się przydatna podczas urządzania Twojego wymarzonego domu!
Książeczka z rabatami do takich firm jak: Komfort, Domino Łazienki, Fachowiec, Vox, Komandor, Witek Home i innych
Gwarancja
bezpiecznych zakupów
Dodatkowe pakiety projektowe