Dane techniczne
- Powierzchnia użytkowa 106.97 m²
- Powierzchnia zabudowy 109.89 m²
- Kąt nachylenia dachu 40.00°
- Powierzchnia dachu 180.00 m²
- Wysokość budynku 7.88 m
- Min. wymiary działki 18.45x19.60 m
- Pracownia Autorska Pracownia Projektowa Projektyka Joanna Ratajczak
Technologia budowy
| Lp |
Nazwa pomieszczenia |
Pow. użytkowa |
| 1 |
wiatrołap |
4,93 m2 |
| 2 |
spiżarnia |
2,63 m2 |
| 3 |
kuchnia |
8,28 m2 |
| 4 |
salon |
26,82 m2 |
| 5 |
holl |
6,08 m2 |
| 6 |
schowek |
2,01 m2 |
| 7 |
WC |
5,66 m2 |
| Pow. użytkowa |
56,41 m2 |
| 8 |
pom. gospodarcze |
6,30 m2 |
| 9 |
garaż |
19,46 m2 |
| Pow. razem |
82,17 m2 |
Opis
Ka39 to projekt domu parterowego z użytkowym poddaszem.
Strefa dzienna znajduje się na parterze. Zlokalizowano tutaj kuchnię ze spiżarnią, salon z wyjściem na taras, schowek pod schodami, toaletę oraz niezbędny garaż połączony z pomieszczeniem gospodarczym.
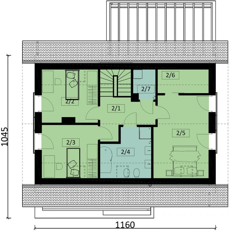
Na poddaszu znajduje się strefa nocna z trzema sypialniami, garderobą, łazienką i pralnią.
Dbamy o swoich Klientów, jak nikt inny!
Do każdego projektu zakupionego za pośrednictwem serwisu kreoDOM.pl otrzymasz książeczkę z rabatami na zakupy w firmach Komfort, Fachowiec, Domino Łazienki, Komandor, Witek Home i innych. Książeczka na pewno okaże się przydatna podczas urządzania Twojego wymarzonego domu!
Książeczka z rabatami do takich firm jak: Komfort, Domino Łazienki, Fachowiec, Vox, Komandor, Witek Home i innych
Gwarancja
bezpiecznych zakupów
Dodatkowe pakiety projektowe