Dane techniczne
- Powierzchnia użytkowa 91.51 m²
- Powierzchnia zabudowy 73.47 m²
- Kąt nachylenia dachu 5.00°
- Powierzchnia dachu 68.61 m²
- Wysokość budynku 7.20 m
- Min. wymiary działki 18.90x10.23 m
- Pracownia Autorska Pracownia Projektowa Projektyka Joanna Ratajczak
Technologia budowy
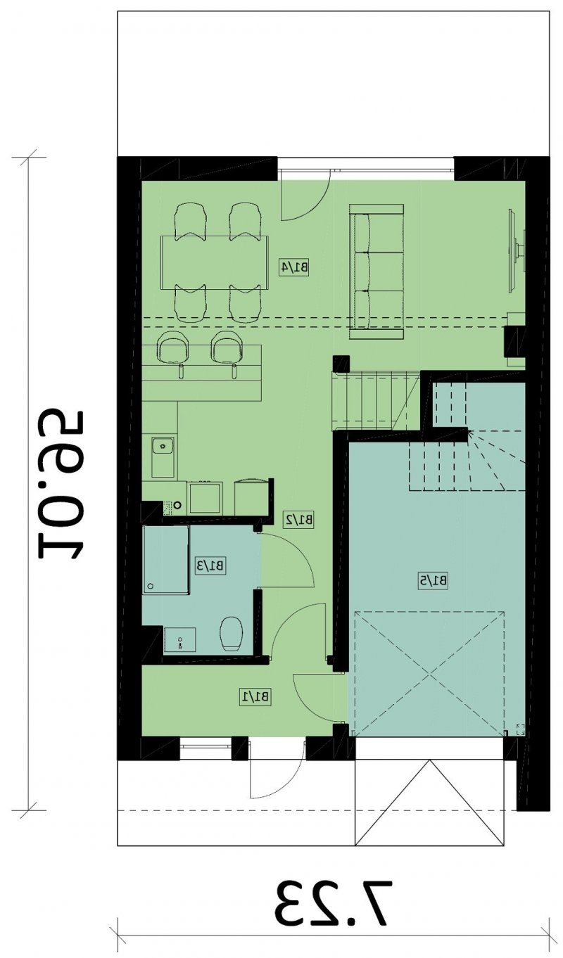
| Lp |
Nazwa pomieszczenia |
Pow. użytkowa |
| 1 |
wiatrołap |
3,99 m2 |
| 2 |
korytarz |
3,48 m2 |
| 3 |
łazienka |
4,04 m2 |
| 4 |
salon z aneksem |
27,65 m2 |
| Pow. użytkowa |
39,16 m2 |
| 5 |
garaż |
14,88 m2 |
| Pow. razem |
54,04 m2 |
Opis
Dbamy o swoich Klientów, jak nikt inny!
Do każdego projektu zakupionego za pośrednictwem serwisu kreoDOM.pl otrzymasz książeczkę z rabatami na zakupy w firmach Komfort, Fachowiec, Domino Łazienki, Komandor, Witek Home i innych. Książeczka na pewno okaże się przydatna podczas urządzania Twojego wymarzonego domu!
Książeczka z rabatami do takich firm jak: Komfort, Domino Łazienki, Fachowiec, Vox, Komandor, Witek Home i innych
Gwarancja
bezpiecznych zakupów
Dodatkowe pakiety projektowe