Dane techniczne
- Powierzchnia użytkowa 120.50 m²
- Powierzchnia zabudowy 185.66 m²
- Kąt nachylenia dachu 3.00°
- Powierzchnia dachu 190.91 m²
- Wysokość budynku 4.45 m
- Min. wymiary działki 23.59x22.85 m
- Pracownia Autorska Pracownia Projektowa Projektyka Joanna Ratajczak
Technologia budowy
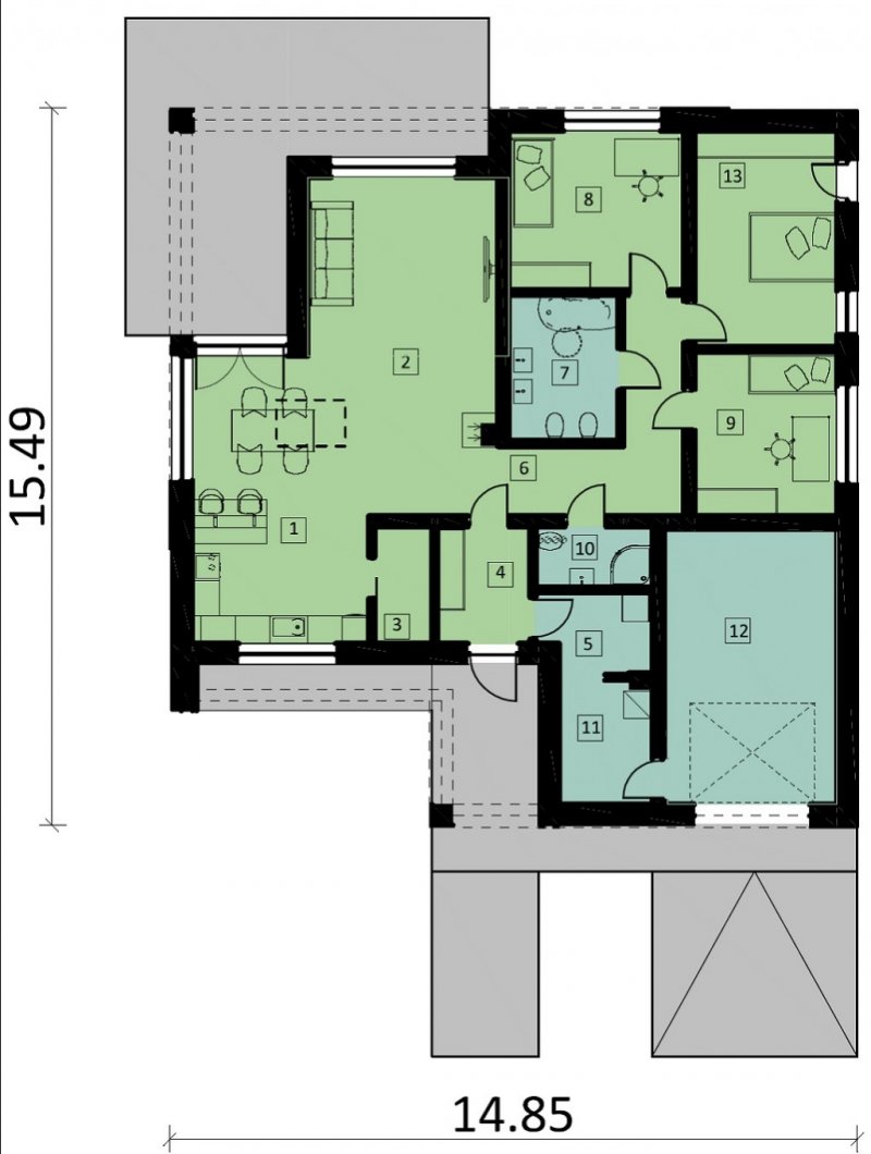
| Lp |
Nazwa pomieszczenia |
Pow. użytkowa |
| 1 |
kuchnia |
10,54 m2 |
| 2 |
salon |
38,66 m2 |
| 3 |
spiżarnia |
3,12 m2 |
| 4 |
wiatrołap |
5,04 m2 |
| 5 |
pralnia |
4,11 m2 |
| 6 |
korytarz |
10,27 m2 |
| 7 |
łazienka |
7,41 m2 |
| 8 |
sypialnia |
13,00 m2 |
| 9 |
sypialnia |
10,83 m2 |
| 10 |
WC |
3,26 m2 |
| 13 |
sypialnia |
14,26 m2 |
| Pow. użytkowa |
120,50 m2 |
| 11 |
pom. gospodarcze |
5,41 m2 |
| 12 |
garaż |
21,54 m2 |
| Pow. razem |
147,45 m2 |
Opis
Dbamy o swoich Klientów, jak nikt inny!
Do każdego projektu zakupionego za pośrednictwem serwisu kreoDOM.pl otrzymasz książeczkę z rabatami na zakupy w firmach Komfort, Fachowiec, Domino Łazienki, Komandor, Witek Home i innych. Książeczka na pewno okaże się przydatna podczas urządzania Twojego wymarzonego domu!
Książeczka z rabatami do takich firm jak: Komfort, Domino Łazienki, Fachowiec, Vox, Komandor, Witek Home i innych
Gwarancja
bezpiecznych zakupów
Dodatkowe pakiety projektowe