Dane techniczne
- Powierzchnia użytkowa 163.39 m²
- Powierzchnia zabudowy 135.89 m²
- Kąt nachylenia dachu 40.00°
- Powierzchnia dachu 232.33 m²
- Wysokość budynku 8.24 m
- Min. wymiary działki 20.39x20.03 m
- Pracownia Autorska Pracownia Projektowa Projektyka Joanna Ratajczak
Technologia budowy
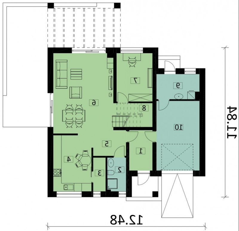
| Lp |
Nazwa pomieszczenia |
Pow. użytkowa |
| 1 |
wiatrołap |
5,94 m2 |
| 2 |
łazienka |
3,98 m2 |
| 3 |
spiżarnia |
2,69 m2 |
| 4 |
kuchnia |
13,69 m2 |
| 5 |
holl |
4,89 m2 |
| 6 |
salon |
30,36 m2 |
| 7 |
pokój |
10,98 m2 |
| 8 |
schody |
5,28 m2 |
| Pow. użytkowa |
77,81 m2 |
| 9 |
pom. gospodarcze |
6,68 m2 |
| 10 |
garaż |
18,97 m2 |
| Pow. parteru |
103,46 m2
|
Opis
Dbamy o swoich Klientów, jak nikt inny!
Do każdego projektu zakupionego za pośrednictwem serwisu kreoDOM.pl otrzymasz książeczkę z rabatami na zakupy w firmach Komfort, Fachowiec, Domino Łazienki, Komandor, Witek Home i innych. Książeczka na pewno okaże się przydatna podczas urządzania Twojego wymarzonego domu!
Książeczka z rabatami do takich firm jak: Komfort, Domino Łazienki, Fachowiec, Vox, Komandor, Witek Home i innych
Gwarancja
bezpiecznych zakupów
Dodatkowe pakiety projektowe