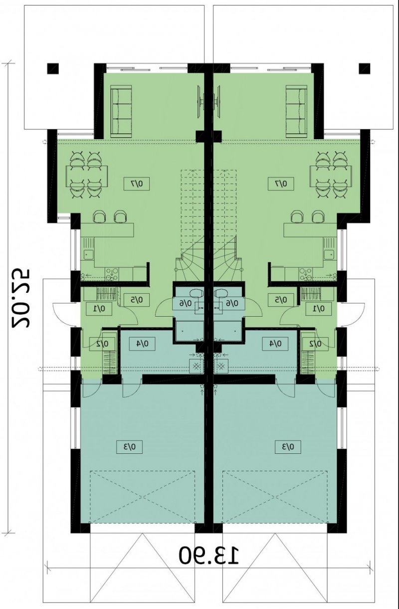
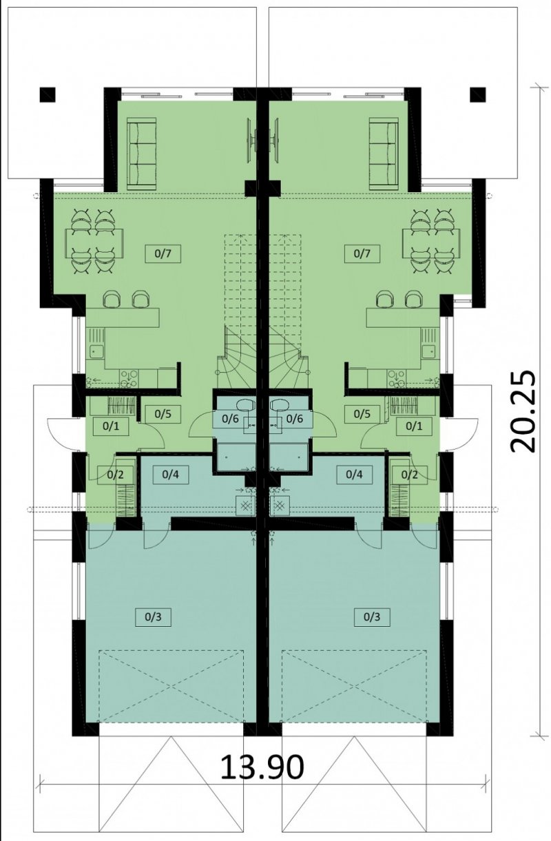
Budynek A
| Lp | Nazwa pomieszczenia | Pow. użytkowa |
|---|---|---|
| 1 | wiatrołap | 2,80 m2 |
| 2 | garderoba | 3,04 m2 |
| 5 | holl | 3,95 m2 |
| 6 | łazienka | 2,94 m2 |
| 7 | salon z aneksem | 46,68 m2 |
| Pow. użytkowa | 63,16 m2 | |
| 3 | garaż | 32,04 m2 |
| 4 | pom. gosp. | 5,86 m2 |
| Pow. razem | 101,03 m2 | |
Budynek B
| Lp | Nazwa pomieszczenia | Pow. użytkowa |
|---|---|---|
| 1 | wiatrołap | 2,80 m2 |
| 2 | garderoba | 3,04 m2 |
| 5 | holl | 3,95 m2 |
| 6 | łazienka | 2,94 m2 |
| 7 | salon z aneksem | 46,68 m2 |
| Pow. użytkowa | 63,16 m2 | |
| 3 | garaż | 32,04 m2 |
| 4 | pom. gosp. | 5,86 m2 |
| Pow. razem | 101,03 m2 | |
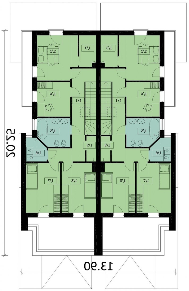
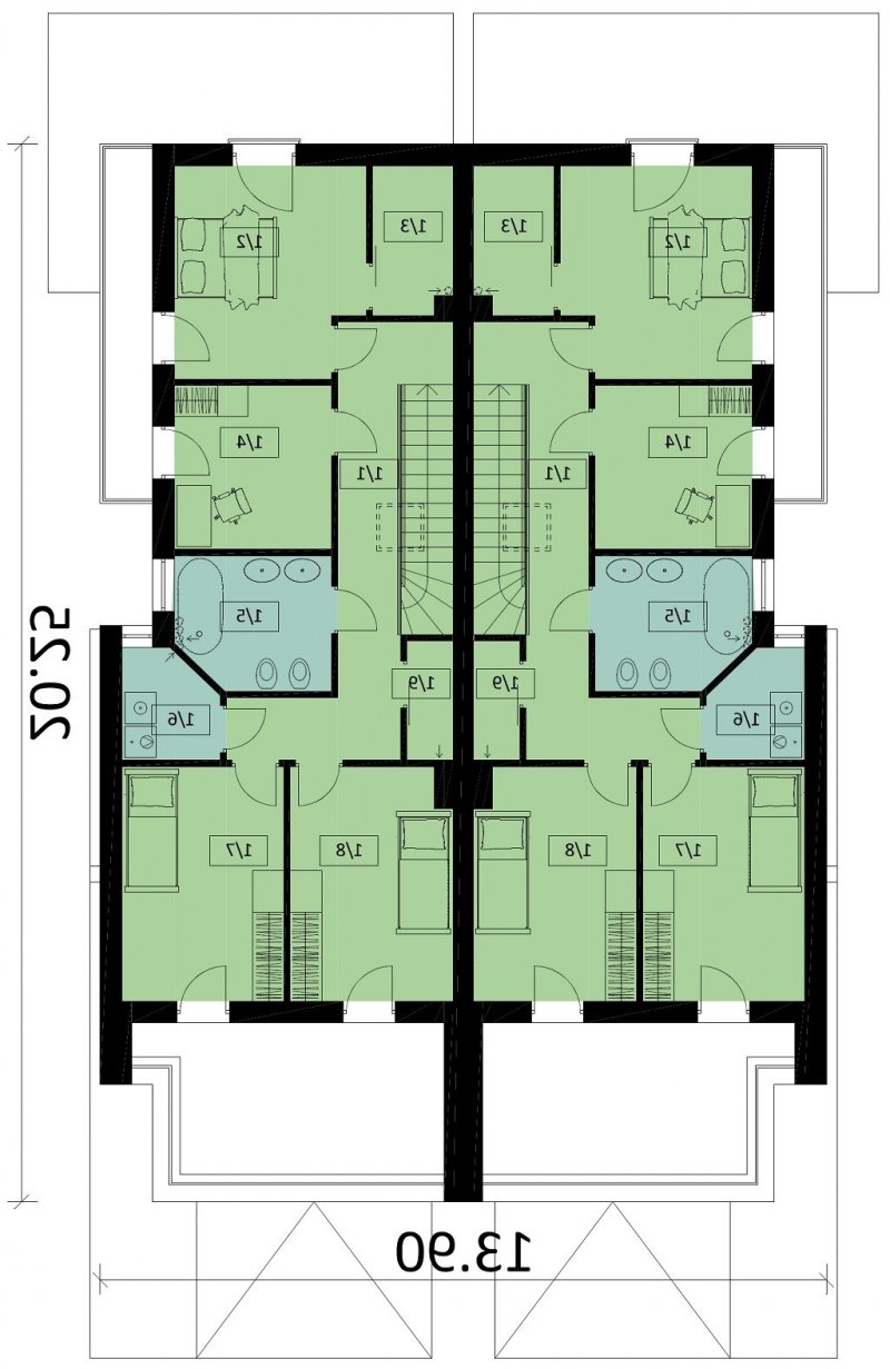
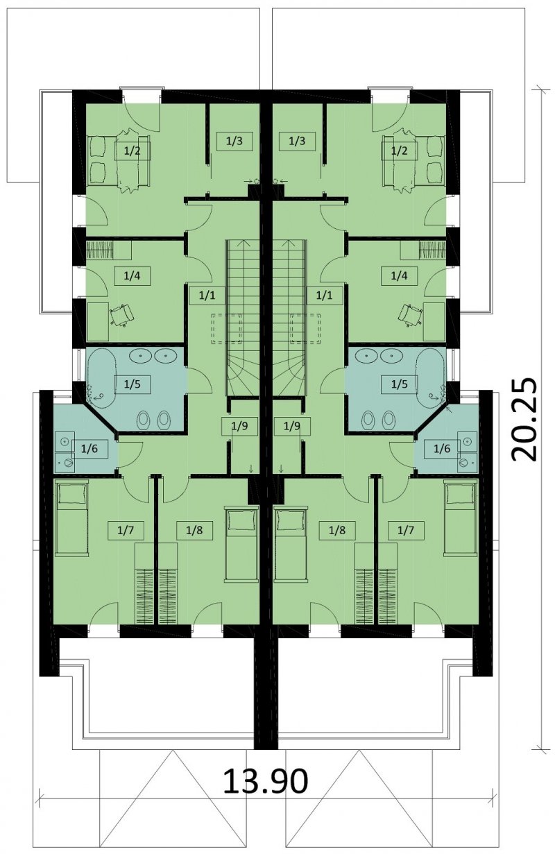
Ka63 to nowoczesny projekt domu w zabudowie bliźniaczej. Wejście do domu zaprojektowano na bocznej ścianie domu. Parter to otwarta przestrzeń, w której nie zabraknie salonu, jadalni oraz kuchni. Na piętrze znajdują się sypialnie, gabinet, łazienka oraz pralnia. Dodatkowym udogodnieniem jest schowek zlokalizowany tuż przy schodach.
Dostępny jest jako segment Ka63S.