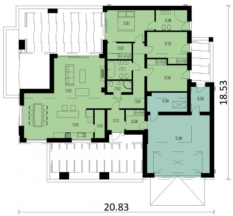
| Lp | Nazwa pomieszczenia | Pow. użytkowa |
|---|---|---|
| 1 | wiatrołap | 4,09 m2 |
| 2 | spiżarnia | 3,26 m2 |
| 3 | kuchnia | 13,26 m2 |
| 4 | salon + jadalnia | 44,83 m2 |
| 5 | WC | 3,26 m2 |
| 6 | korytarz | 13,06 m2 |
| 7 | łazienka | 5,38 m2 |
| 8 | garderoba | 4,57 m2 |
| 9 | sypialnia | 16,05 m2 |
| 10 | łazienka | 7,44 m2 |
| 11 | sypialnia | 13,47 m2 |
| 12 | sypialnia | 13,49 m2 |
| 13 | garderoba | 4,47 m2 |
| Pow. użytkowa | 146,66 m2 | |
| 14 | kotłownia | 8,76 m2 |
| 15 | pom. gosp. | 5,57 m2 |
| 16 | garaż | 41,49 m2 |
| Pow. razem | 202,48 m2 | |
Ka69 to projekt domu parterowego w nowoczesnym stylu. Jego powierzchnię użytkową rozplanowano na 146,66 m2. W wiatrołapie zaprojektowano garderobę z przejściem do garażu. W strefie dziennej przewidziano wykonanie kuchni ze spiżarnią o powierzchni ok. 3,26 m2 oraz przestronnego salon z jadalnią. Strefa nocna obejmuje 3 sypialnie, w tym jedna z prywatną łazienką i garderobą.