Dane techniczne
- Powierzchnia użytkowa 141.31 m²
- Powierzchnia zabudowy 146.13 m²
- Kąt nachylenia dachu 45.00°
- Powierzchnia dachu 170.00 m²
- Wysokość budynku 9.39 m
- Min. wymiary działki 21.26x21.06 m
- Pracownia Autorska Pracownia Projektowa Projektyka Joanna Ratajczak
Technologia budowy
| Lp |
Nazwa pomieszczenia |
Pow. użytkowa |
| 1 |
wiatrołap |
5,38 m2 |
| 2 |
łazienka |
3,63 m2 |
| 3 |
gabinet |
15,76 m2 |
| 4 |
salon+jadalnia+schody |
47,88 m2 |
| 5 |
kuchnia |
9,76 m2 |
| 6 |
spiżarnia |
1,55 m2 |
| Pow. użytkowa |
83,96 m2 |
| 7 |
pom. gosp. |
5,52 m2 |
| 8 |
garaż |
27,49 m2 |
| Pow. razem |
116,97 m2 |
Opis
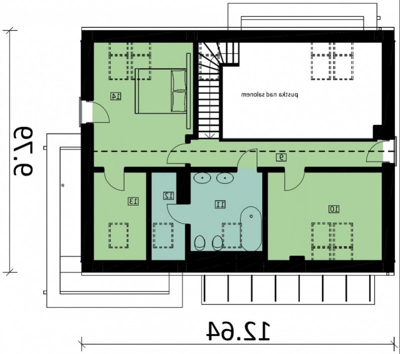
Ka72 projekt domu parterowego z poddaszem użytkowym i jednostanowiskowym garażem. Prosta bryła budynku oraz dwuspadowy dach obniżą koszty budowy domu. Parter to strefa dzienna, w której dodatkowo wydzielony został gabinet o powierzchni blisko 16 m2. Z wiatrołapu przewidziano przejście do pomieszczenia gospodarczego oraz garażu. Na poddaszu zaprojektowano 2 sypialnie, garderobę łazienkę z pralnią oraz pustkę nad salonem.
Dbamy o swoich Klientów, jak nikt inny!
Do każdego projektu zakupionego za pośrednictwem serwisu kreoDOM.pl otrzymasz książeczkę z rabatami na zakupy w firmach Komfort, Fachowiec, Domino Łazienki, Komandor, Witek Home i innych. Książeczka na pewno okaże się przydatna podczas urządzania Twojego wymarzonego domu!
Książeczka z rabatami do takich firm jak: Komfort, Domino Łazienki, Fachowiec, Vox, Komandor, Witek Home i innych
Gwarancja
bezpiecznych zakupów
Dodatkowe pakiety projektowe