Dane techniczne
- Powierzchnia użytkowa 82.12 m²
- Powierzchnia zabudowy 83.06 m²
- Kąt nachylenia dachu 35.00°
- Powierzchnia dachu 83.67 m²
- Wysokość budynku 7.79 m
- Min. wymiary działki 15.60x19.20 m
- Pracownia Autorska Pracownia Projektowa Projektyka Joanna Ratajczak
Technologia budowy
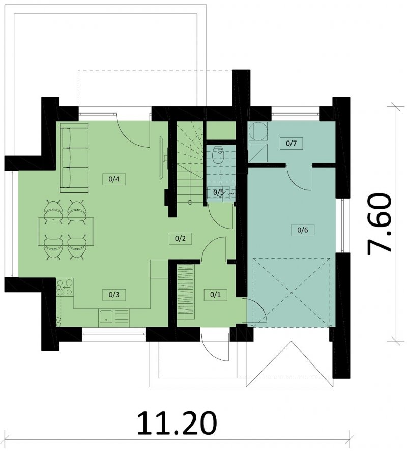
| Lp |
Nazwa pomieszczenia |
Pow. użytkowa |
| 1 |
wiatrołap |
4,05 m2 |
| 2 |
holl |
3,77 m2 |
| 3 |
kuchnia |
6,99 m2 |
| 4 |
salon |
21,94 m2 |
| 5 |
WC |
1,45 m2 |
| Pow. użytkowa |
38,20 m2 |
| 6 |
garaż |
15,08 m2 |
| 7 |
pom. gosp. |
4,05 m2 |
| Pow. parteru |
57,33 m2
|
Opis
Ka74 to niewielki projekt domu parterowego z użytkowym poddaszem. Jednostanowiskowy garaż został wbudowany w byłe budynku. Strefa dzienna na parterze wydziela otwartą kuchnie na salon z jadalnią oraz toaletę pod schodami. Na poddaszu zaprojektowana została strefa nocna, w której znajdują się 3 sypialnie, w tym jedna z garderobą oraz łazienka.
Dbamy o swoich Klientów, jak nikt inny!
Do każdego projektu zakupionego za pośrednictwem serwisu kreoDOM.pl otrzymasz książeczkę z rabatami na zakupy w firmach Komfort, Fachowiec, Domino Łazienki, Komandor, Witek Home i innych. Książeczka na pewno okaże się przydatna podczas urządzania Twojego wymarzonego domu!
Książeczka z rabatami do takich firm jak: Komfort, Domino Łazienki, Fachowiec, Vox, Komandor, Witek Home i innych
Gwarancja
bezpiecznych zakupów
Dodatkowe pakiety projektowe