Dane techniczne
- Powierzchnia użytkowa 145.71 m²
- Powierzchnia zabudowy 133.07 m²
- Kąt nachylenia dachu 40.00°
- Powierzchnia dachu 222.00 m²
- Wysokość budynku 8.96 m
- Min. wymiary działki 19.44x22.17 m
- Pracownia Autorska Pracownia Projektowa Projektyka Joanna Ratajczak
Technologia budowy
| Lp |
Nazwa pomieszczenia |
Pow. użytkowa |
| 1 |
wiatrołap |
5,14 m2 |
| 2 |
WC |
3,44 m2 |
| 3 |
korytarz |
6,70 m2 |
| 4 |
kuchnia |
8,96 m2 |
| 5 |
salon + jadalnia |
29,34 m2 |
| 6 |
pokój |
9,18 m2 |
| Pow. użytkowa |
62,76 m2 |
| 7 |
pom. gosp. |
7,60 m2 |
| 8 |
garaż |
27,95 m2 |
| Pow. razem |
98,31 m2 |
Opis
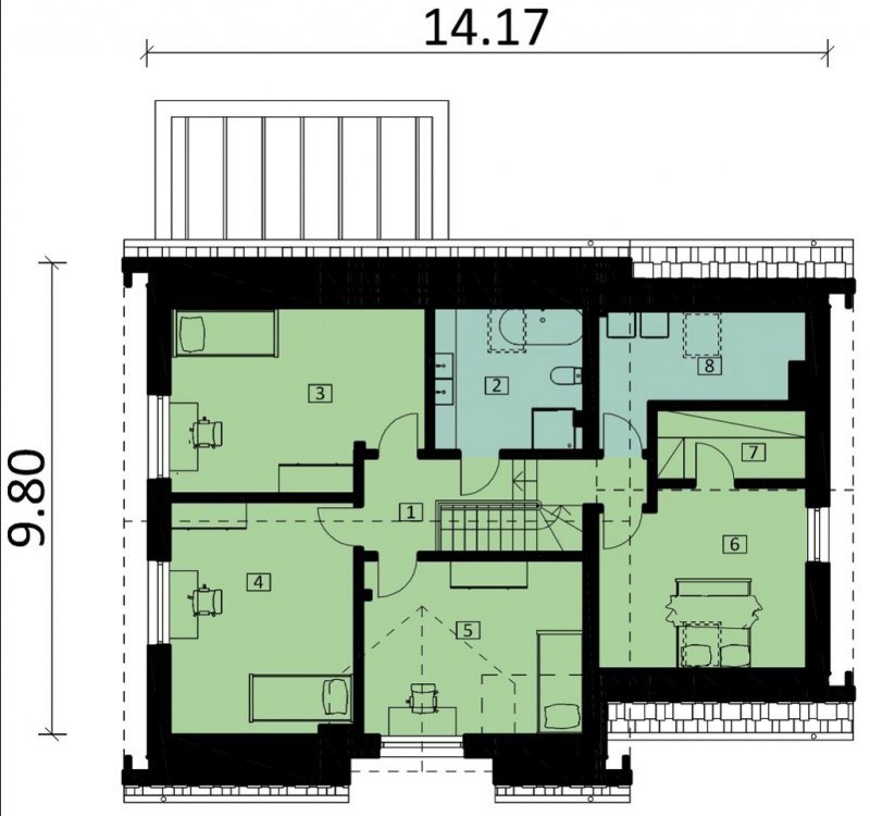
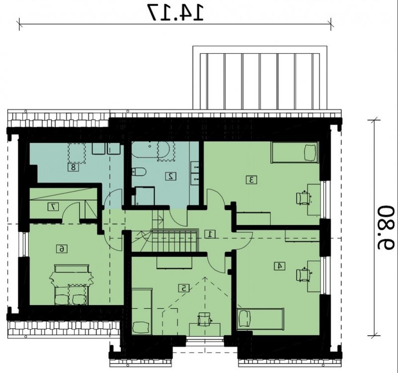
Ka80 to przestronny projekt domu parterowego z użytkowym poddaszem. Powierzchnia użytkowa została rozplanowana na 145,71 m2. Parter to strefa dzienna, gdzie zaprojektowano salon z jadalnią, otwartą kuchnię oraz łazienkę. Udogodnieniem jest gabinet w sąsiedztwie schodów i salonu, który może pełnić funkcję pokoju gościnnego. Na poddaszu przewidziano wykonanie 4 sypialni, łazienki, pralni oraz garderoby. Strefa gospodarcza to jednostanowiskowy garaż oraz pomieszczenie gospodarcze z dodatkowym wejściem.
Dbamy o swoich Klientów, jak nikt inny!
Do każdego projektu zakupionego za pośrednictwem serwisu kreoDOM.pl otrzymasz książeczkę z rabatami na zakupy w firmach Komfort, Fachowiec, Domino Łazienki, Komandor, Witek Home i innych. Książeczka na pewno okaże się przydatna podczas urządzania Twojego wymarzonego domu!
Książeczka z rabatami do takich firm jak: Komfort, Domino Łazienki, Fachowiec, Vox, Komandor, Witek Home i innych
Gwarancja
bezpiecznych zakupów
Dodatkowe pakiety projektowe