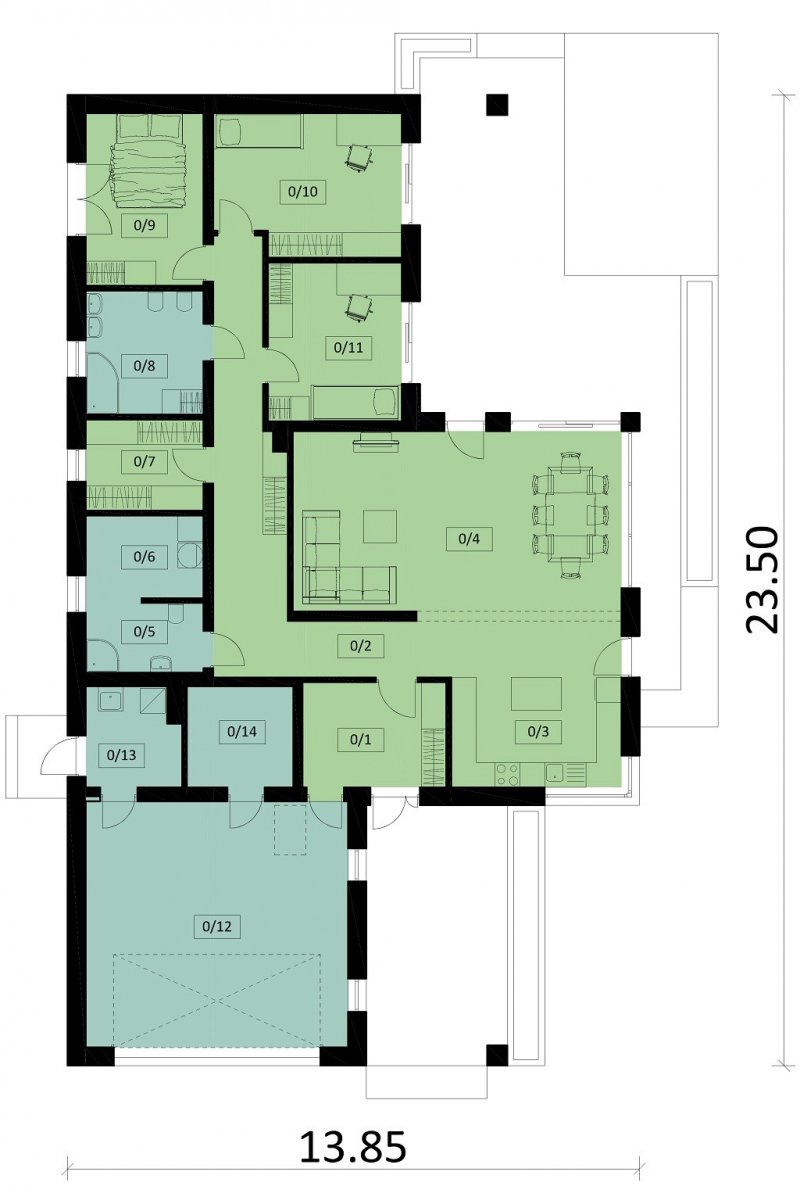
| Lp | Nazwa pomieszczenia | Pow. użytkowa |
|---|---|---|
| 1 | wiatrołap | 8,84 m2 |
| 2 | holl | 21,61 m2 |
| 3 | kuchnia | 16,56 m2 |
| 4 | salon + jadalnia | 35,69 m2 |
| 5 | łazienka | 4,95 m2 |
| 6 | pralnia | 5,70 m2 |
| 7 | garderoba | 6,27 m2 |
| 8 | łazienka | 8,55 m2 |
| 9 | sypialnia | 11,91 m2 |
| 10 | sypialnia | 15,10 m2 |
| 11 | sypialnia | 12,44 m2 |
| Pow. użytkowa | 147,62 m2 | |
| 12 | garaż | 37,85 m2 |
| 13 | pom. gospodarcze | 5,36 m2 |
| 14 | schowek | 6,30 m2 |
| Pow. razem | 197,13 m2 | |
Ka82 został zaprojektowany w nowoczesnym stylu. Do domu prowadzi zadaszone wejście. Strefa dzienna to w pełni otwarta przestrzeń z dużymi przeszkleniami, które naturalnie doświetlą wnętrze. Dodatkowa łazienka połączona z pralnią zdecydowanie ułatwi utrzymanie porządku w domu. Do strefy nocnej prowadzi długi korytarz. W tej części domu znajdują się 3 sypialnie, łazienka oraz garderoba. Funkcjonalności dodaje dwustanowiskowy garaż połączony z pomieszczeniem gospodarczym oraz schowkiem, a cała strefa gospodarcza zajmuje blisko 50 m2 powierzchni.