Dane techniczne
- Powierzchnia użytkowa 81.30 m²
- Powierzchnia zabudowy 93.00 m²
- Kubatura 437.80 m³
- Kąt nachylenia dachu 45.00°
- Wysokość budynku 6.98 m
- Min. wymiary działki 22.00x16.50 m
- Garaż 17.30 m²
- Pracownia MOJ-DOM
Technologia budowy
Ściany:
Fundamenty: żelbetowe, wylewane
Ściany zewnętrzne: murowane, jednowarstwowe, beton komórkowy lub ceramika.
Stropy:
żelbetowy, prefabrykowany
Wykończenie:
Schody: żelbetowe lub drewniane
Dach
Pokrycie dachu: blachodachówka
Opis
Budynek jednorodzinny, parterowy, z poddaszem mieszkalnym, niepodpiwniczony, 4 pokoje, kuchnia, garaż
Rzuty
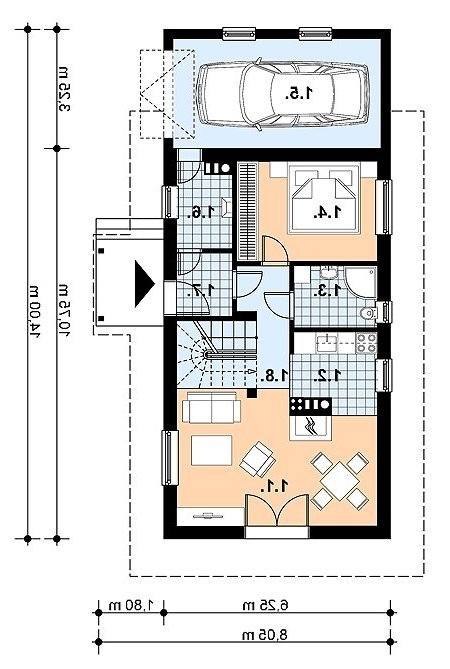
1. pokój dzienny19.2 m2
2. kuchnia4.9 m2
3. łazienka4.0 m2
4. sypialnia10.8 m2
5. garaż17.3 m2
6. kotłownia3.5 m2
7. wiatrołap2.7 m2
8. komunikacja8.1 m2
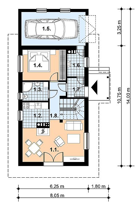
1. sypialnia20.0 m2
2. łazienka3.9 m2
3. sypialnia23.1 m2
Rzuty
1. pokój dzienny19.2 m2
2. kuchnia4.9 m2
3. łazienka4.0 m2
4. sypialnia10.8 m2
5. garaż17.3 m2
6. kotłownia3.5 m2
7. wiatrołap2.7 m2
8. komunikacja8.1 m2
1. sypialnia20.0 m2
2. łazienka3.9 m2
3. sypialnia23.1 m2
Dbamy o swoich Klientów, jak nikt inny!
Do każdego projektu zakupionego za pośrednictwem serwisu kreoDOM.pl otrzymasz książeczkę z rabatami na zakupy w firmach Komfort, Fachowiec, Domino Łazienki, Komandor, Witek Home i innych. Książeczka na pewno okaże się przydatna podczas urządzania Twojego wymarzonego domu!
Książeczka z rabatami do takich firm jak: Komfort, Domino Łazienki, Fachowiec, Vox, Komandor, Witek Home i innych
Gwarancja
bezpiecznych zakupów
Dodatkowe pakiety projektowe