Dane techniczne
- Powierzchnia użytkowa 93.40 m²
- Powierzchnia zabudowy 79.10 m²
- Kubatura 446.90 m³
- Kąt nachylenia dachu 45.00°
- Wysokość budynku 6.99 m
- Min. wymiary działki 19.50x16.50 m
- Pracownia MOJ-DOM
Technologia budowy
Ściany:
Projekt dostępny również w technologii szkieletowej oraz bala drewnianego.
Fundamenty: żelbetowe, wylewane
Ściany zewnętrzne: murowane, jednowarstwowe, beton komórkowy lub ceramika.
Stropy:
Belkowy, drewniany, otwarty
Wykończenie:
Schody: drewniane
Dach
Pokrycie dachu: gont bitumiczny, nachylenie dachu 45
Opis
Budynek jednorodzinny, parterowy, z poddaszem mieszkalnym, niepodpiwniczony, 4 pokoje, kuchnia z jadalnią
Rzuty
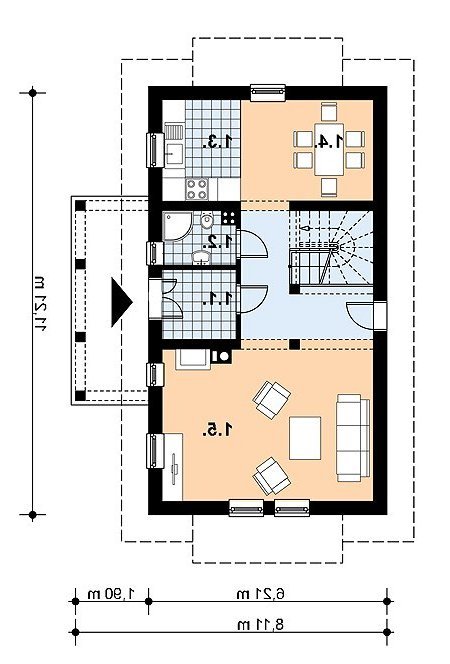
1. wiatrołap3.6 m2
2. łazienka2.6 m2
3. kuchnia5.4 m2
4. jadalnia9.2 m2
5. pokój dzienny31.5 m2
1. hall10.4 m2
2. sypialnia7.6 m2
3. łazienka5.7 m2
4. sypialnia13.2 m2
5. garderoba4.4 m2
6. sypialnia10.7 m2
7. garderoba5.1 m2
Rzuty
1. wiatrołap3.6 m2
2. łazienka2.6 m2
3. kuchnia5.4 m2
4. jadalnia9.2 m2
5. pokój dzienny31.5 m2
1. hall10.4 m2
2. sypialnia7.6 m2
3. łazienka5.7 m2
4. sypialnia13.2 m2
5. garderoba4.4 m2
6. sypialnia10.7 m2
7. garderoba5.1 m2
Dbamy o swoich Klientów, jak nikt inny!
Do każdego projektu zakupionego za pośrednictwem serwisu kreoDOM.pl otrzymasz książeczkę z rabatami na zakupy w firmach Komfort, Fachowiec, Domino Łazienki, Komandor, Witek Home i innych. Książeczka na pewno okaże się przydatna podczas urządzania Twojego wymarzonego domu!
Książeczka z rabatami do takich firm jak: Komfort, Domino Łazienki, Fachowiec, Vox, Komandor, Witek Home i innych
Gwarancja
bezpiecznych zakupów
Dodatkowe pakiety projektowe