Dane techniczne
- Powierzchnia użytkowa 145.20 m²
- Powierzchnia zabudowy 128.30 m²
- Kubatura 708.70 m³
- Kąt nachylenia dachu 40.00°
- Wysokość budynku 7.72 m
- Min. wymiary działki 22.00x19.00 m
- Garaż 22.70 m²
- Pracownia MOJ-DOM
Technologia budowy
Ściany:
Fundamenty: żelbetowe, wylewane
Ściany fundamentów: betonowe wylewane lub z bloczków betonowych
Ściany zewnętrzne: jednowarstwowe beton komórkowy lub pustaki ceramiczne
Stropy:
żelbetowy, prefabrykowany
Wykończenie:
Schody: żelbetowe
Dach
Pokrycie dachu: dachówka betonowa.
Opis
Budynek jednorodzinny, parterowy, z poddaszem mieszkalnym, niepodpiwniczony, 4 pokoje, kuchnia, garaż, jadalnia
Rzuty
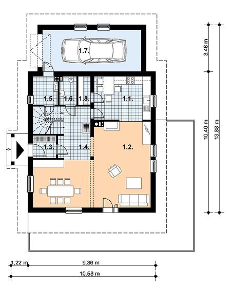
1. kuchnia13.6 m2
2. pokój dzienny41.8 m2
3. wiatrołap2.9 m2
4. hall10.7 m2
5. kotłownia3.8 m2
6. łazienka2.4 m2
7. garaż22.7 m2
8. spiżarka1.9 m2
1. łazienka11.3 m2
2. sypialnia26.7 m2
3. sypialnia21.5 m2
4. komunikacja10.4 m2
5. pom.gosp.6.0 m2
6. sypialnia15.7 m2
7. garderoba6.7 m2
Rzuty
1. kuchnia13.6 m2
2. pokój dzienny41.8 m2
3. wiatrołap2.9 m2
4. hall10.7 m2
5. kotłownia3.8 m2
6. łazienka2.4 m2
7. garaż22.7 m2
8. spiżarka1.9 m2
1. łazienka11.3 m2
2. sypialnia26.7 m2
3. sypialnia21.5 m2
4. komunikacja10.4 m2
5. pom.gosp.6.0 m2
6. sypialnia15.7 m2
7. garderoba6.7 m2
Dbamy o swoich Klientów, jak nikt inny!
Do każdego projektu zakupionego za pośrednictwem serwisu kreoDOM.pl otrzymasz książeczkę z rabatami na zakupy w firmach Komfort, Fachowiec, Domino Łazienki, Komandor, Witek Home i innych. Książeczka na pewno okaże się przydatna podczas urządzania Twojego wymarzonego domu!
Książeczka z rabatami do takich firm jak: Komfort, Domino Łazienki, Fachowiec, Vox, Komandor, Witek Home i innych
Gwarancja
bezpiecznych zakupów
Dodatkowe pakiety projektowe