Dane techniczne
- Powierzchnia użytkowa 192.30 m²
- Powierzchnia zabudowy 159.80 m²
- Kubatura 1007.50 m³
- Kąt nachylenia dachu 42.00°
- Wysokość budynku 8.53 m
- Min. wymiary działki 24.50x20.50 m
- Garaż 38.80 m²
- Pracownia MOJ-DOM
Technologia budowy
Fundamenty: żelbetowe, wylewane
Ściany zewnetrzne: murowane, jednowarstwowe, beton komórkowy lub ceramika
Strop: żelbetowy, prefabrykowany
Schody: żelbetowe lub drewniane
Pokrycie dachu: dachówka betonowa
Nachylenie dachu 42°
Opis
Budynek jednorodzinny, parterowy, z poddaszem mieszkalnym, niepodpiwniczony, 5 pokoi, kuchnia, garaż
Rzuty
1. sypialnia11.5 m2
2. pokój dzienny38.0 m2
3. kuchnia9.0 m2
4. wiatrołap3.7 m2
5. kotłownia5.6 m2
6. komunikacja14.7 m2
7. garaż38.8 m2
8. łazienka4.7 m2
9. spiżarka1.9 m2
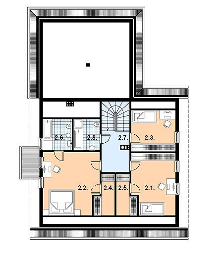
1. sypialnia17.8 m2
2. sypialnia18.0 m2
3. łazienka11.4 m2
4. sypialnia38.7 m2
5. garderoba7.5 m2
6. pokój13.9 m2
7. garderoba5.0 m2
8. komunikacja13.6 m2
Rzuty
1. sypialnia11.5 m2
2. pokój dzienny38.0 m2
3. kuchnia9.0 m2
4. wiatrołap3.7 m2
5. kotłownia5.6 m2
6. komunikacja14.7 m2
7. garaż38.8 m2
8. łazienka4.7 m2
9. spiżarka1.9 m2
1. sypialnia17.8 m2
2. sypialnia18.0 m2
3. łazienka11.4 m2
4. sypialnia38.7 m2
5. garderoba7.5 m2
6. pokój13.9 m2
7. garderoba5.0 m2
8. komunikacja13.6 m2
Dbamy o swoich Klientów, jak nikt inny!
Do każdego projektu zakupionego za pośrednictwem serwisu kreoDOM.pl otrzymasz książeczkę z rabatami na zakupy w firmach Komfort, Fachowiec, Domino Łazienki, Komandor, Witek Home i innych. Książeczka na pewno okaże się przydatna podczas urządzania Twojego wymarzonego domu!
Książeczka z rabatami do takich firm jak: Komfort, Domino Łazienki, Fachowiec, Vox, Komandor, Witek Home i innych
Gwarancja
bezpiecznych zakupów
Dodatkowe pakiety projektowe