Ściany zewnętrzne i wewnętrzne nośne z bloczków Ytong, docieplone 20cm styropianu. Ścianki wewnętrze działowe na parterze z bloczków Silka, na poddaszu z płyt GK bądź murowane. Ściany fundamentowe z bloczków betonowych. Strop gęstożebrowy Teriva. Schody wewnętrzne żelbetowe. Wszystkie technologie można zmienić na etapie adaptacji.
Elewacje wykończone tynkiem mineralnym. Tynki wewnętrzne gipsowe lub cementowo-wapienne. Dachówka cementowa lub ceramiczna. Stolarka okienna drewniana lub PCV.
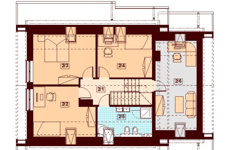
LISANDRA to atrakcyjny i funkcjonalny dom przeznaczony dla 3-6 osobowej rodziny o eleganckiej formie i współczesnej estetyce oraz prostej i taniej, dokładnie przemyślanej konstrukcji. Jest to dom parterowy z użytkowym poddaszem, niepodpiwniczony, z garażem jednostanowiskowym. Na parterze zlokalizowana jest wygodna strefa dzienna składająca się z kuchni (która w zależności od potrzeb może być zamykana lub otwarta) jadalni oraz salonu otwartego na taras i ogród. Dzięki doświetleniu strefy dziennej zarówno od strony ogrodu jak i z boku od strony jadalni, dom nadaje się na każdą działkę, zarówno z wjazdem od północy jak i od południa, wschodu bądź zachodu. Uzupełnieniem kuchni jest pojemna spiżarka. Dodatkowo na parterze zaprojektowano pokój, który może służyć jako pokój gościnny, gabinet czy pokój najstarszego członka rodziny, łazienkę i garaż bezpośrednio połączony z wiatrołapem oraz kotłownię dostępną z garażu z wyjściem na ogród dzięki czemu może ona stanowić też miejsce składowania narzędzi ogrodowych. W wiatrołapie przewidziano miejsce na szafy przez co pełni on dodatkową rolę pojemnej garderoby / szatni. Na poddaszu znalazły się trzy wygodne pokoje oraz funkcjonalna łazienka z wanną i kabiną prysznicową oraz pralką. Strych dostępny jest z półpiętra, może on być przeznaczony na dodatkowy pokój, garderobę, pralnię, siłownię, saunę czy salę z kinem domowym. W projektowaniu Lisandry szczególną uwagę zwrócono na atrakcyjny wygląd zewnętrzny, proporcjonalność bryły budynku, odpowiednie doświetlenie i funkcjonalne rozplanowanie pomieszczeń przy zachowaniu prostoty konstrukcji oraz zwartości bryły domu. Dom zaprojektowano jako energooszczędny.