Dane techniczne
- Powierzchnia użytkowa 170.44 m²
- Powierzchnia zabudowy 141.92 m²
- Kubatura 463.60 m³
- Kąt nachylenia dachu 45.00°
- Powierzchnia dachu 220.00 m²
- Wysokość budynku 8.55 m
- Min. wymiary działki 21.75x21.55 m
- Pracownia LK & Projekt
Technologia budowy
- Ławy fundamentowe: żelbetowe
- Ściany fundamentowe: betonowe
- Ściany zewnętrzne: z pustaków ceramicznych typu 'Max' gr.29 cm firmy 'Leier' + styropian gr.12 cm
- Ściany wewnętrzne: z cegły kratówki gr.45, 25, 12 cm
- Strop: żelbetowy
- Konstrukcja dachu: drewniana docieplona wełną mineralną gr. 17 cm firmy 'Rockwool'
- Pokrycie dachu: dachówką ceramiczną
- Elewacje: wykończone tynkiem akrylowym, cokoły obłożone płytkami klinkierowymi
- Okna i drzwi balkonowe: PVC
- Sposób ogrzewania: kocioł na gaz
- Wentylacja: grawitacyjna
- Koszt orientacyjny (bez Vat): 412 153.00 zł.
Opis
Dom jednorodzinny, parterowy, z poddaszem użytkowym, częściowo podpiwniczony.
Rzuty
PIWNICA
Piwnica
1. Hall 14.50m
2. Kotłownia z pralnią 10.29m
PARTER
Parter
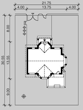
1. Sień 6.39m
2. Hall 12.74m
3. Spiżarka 2.03m
4. Kuchnia 11.40m
5. Jadalnia 9.43m
6. Pokój dzienny 37.03m
7. Pokój 11.80m
8. Łazienka 10.29m
PODDASZE
Poddasze
1. Hall (12.92) 11.37m
2. Łazienka (10.29) 7.74m
3. Sypialnia (22.84) 19.20m
4. Sypialnia 2 (22.84) 19.20m
5. Sypialnia 3 (13.43) 10.22m
6. Garderoba (5.08) 1.60m
Rzuty
PIWNICA
Piwnica
1. Hall 14.50m
2. Kotłownia z pralnią 10.29m
PARTER
Parter
1. Sień 6.39m
2. Hall 12.74m
3. Spiżarka 2.03m
4. Kuchnia 11.40m
5. Jadalnia 9.43m
6. Pokój dzienny 37.03m
7. Pokój 11.80m
8. Łazienka 10.29m
PODDASZE
Poddasze
1. Hall (12.92) 11.37m
2. Łazienka (10.29) 7.74m
3. Sypialnia (22.84) 19.20m
4. Sypialnia 2 (22.84) 19.20m
5. Sypialnia 3 (13.43) 10.22m
6. Garderoba (5.08) 1.60m
Dbamy o swoich Klientów, jak nikt inny!
Do każdego projektu zakupionego za pośrednictwem serwisu kreoDOM.pl otrzymasz książeczkę z rabatami na zakupy w firmach Komfort, Fachowiec, Domino Łazienki, Komandor, Witek Home i innych. Książeczka na pewno okaże się przydatna podczas urządzania Twojego wymarzonego domu!
Książeczka z rabatami do takich firm jak: Komfort, Domino Łazienki, Fachowiec, Vox, Komandor, Witek Home i innych
Gwarancja
bezpiecznych zakupów
Dodatkowe pakiety projektowe
- Kosztorys inwestorski cena ustalana indywidualnie
- Kolektory słoneczne cena ustalana indywidualnie
- Kominek z DGP cena ustalana indywidualnie
- Wentylacja mechaniczna z rekuperacją cena ustalana indywidualnie
- Pompa ciepła cena ustalana indywidualnie