Dane techniczne
- Powierzchnia użytkowa 154.82 m²
- Powierzchnia zabudowy 109.50 m²
- Kubatura 554.86 m³
- Kąt nachylenia dachu 45.00°
- Powierzchnia dachu 205.00 m²
- Wysokość budynku 9.05 m
- Min. wymiary działki 15.50x26.85 m
- Garaż 25.68 m²
- Pracownia LK & Projekt
Technologia budowy
- Wentylacja: grawitacyjna
- Sposób ogrzewania: kocioł na gaz
- Elewacje: wykończone tynkiem silikonowym, na fragmentach ścian okładzina kamienna i drewniana
- Ściany wewnętrzne: z pustaków ceramicznych Porotherm gr. 25, 11.5 cm firmy Wienerberger
- Strop: żelbetowy
- Konstrukcja dachu: drewniana, krokwiowo - płatwiowa, ocieplona wełną mineralną 'Superrock/Megarock' firmy Rockwool o łącznej gr. 30cm
- Ściany fundamentowe: murowane, z zalewowych bloczków betonowych o gr. 25 i 30 cm
- Okna i drzwi balkonowe: drewniane
- Pokrycie dachu: dachówką ceramiczną 'Koramic' firmy 'Wienerberger'
- Ściany zewnętrzne: z pustaków ceramicznych 'Porotherm' firmy Wienerberger o gr.30 cm, ocieplone styropianem 'Gold fasada' o gr.15 cm firmy Termo Organika
- Ławy fundamentowe: żelbetowe
- Koszt orientacyjny (bez Vat): 421 748.00 zł.
Opis
Budynek jednorodzinny, parterowy, z piwnicą i z poddaszem mieszkalnym.
Rzuty
PIWNICA
Piwnica
1. Korytarz 6.74m
2. Pomieszczenie gospodarcze 1.67m
3. Pomieszczenie gospodarcze 2 1.76m
4. Kotłownia 9.23m
5. Garaż 25.68m
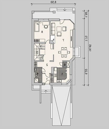
PARTER
Parter
1. Wiatrołap 3.93m
2. Korytarz 16.55m
3. Klatka schodowa 5.12m
4. Łazienka 4.35m
5. Kuchnia 8.92m
6. Spiżarka 1.38m
7. Salon 30.81m
8. Pokój 12.86m
PODDASZE
Poddasze
1. Przedpokój (12.25) 12.25m
2. Łazienka (15.45) 12.18m
3. Sypialnia (14.89) 11.62m
4. Sypialnia 2 (9.70) 9.70m
5. Sypialnia 3 (15.94) 12.64m
6. Sypialnia 4 (15.81) 12.51m
Rzuty
PIWNICA
Piwnica
1. Korytarz 6.74m
2. Pomieszczenie gospodarcze 1.67m
3. Pomieszczenie gospodarcze 2 1.76m
4. Kotłownia 9.23m
5. Garaż 25.68m
PARTER
Parter
1. Wiatrołap 3.93m
2. Korytarz 16.55m
3. Klatka schodowa 5.12m
4. Łazienka 4.35m
5. Kuchnia 8.92m
6. Spiżarka 1.38m
7. Salon 30.81m
8. Pokój 12.86m
PODDASZE
Poddasze
1. Przedpokój (12.25) 12.25m
2. Łazienka (15.45) 12.18m
3. Sypialnia (14.89) 11.62m
4. Sypialnia 2 (9.70) 9.70m
5. Sypialnia 3 (15.94) 12.64m
6. Sypialnia 4 (15.81) 12.51m
Dbamy o swoich Klientów, jak nikt inny!
Do każdego projektu zakupionego za pośrednictwem serwisu kreoDOM.pl otrzymasz książeczkę z rabatami na zakupy w firmach Komfort, Fachowiec, Domino Łazienki, Komandor, Witek Home i innych. Książeczka na pewno okaże się przydatna podczas urządzania Twojego wymarzonego domu!
Książeczka z rabatami do takich firm jak: Komfort, Domino Łazienki, Fachowiec, Vox, Komandor, Witek Home i innych
Gwarancja
bezpiecznych zakupów
Dodatkowe pakiety projektowe
- Kosztorys inwestorski cena ustalana indywidualnie
- Kolektory słoneczne cena ustalana indywidualnie
- Kominek z DGP cena ustalana indywidualnie
- Wentylacja mechaniczna z rekuperacją cena ustalana indywidualnie
- Pompa ciepła cena ustalana indywidualnie