Dane techniczne
- Powierzchnia użytkowa 143.86 m²
- Powierzchnia zabudowy 165.14 m²
- Kubatura 576.01 m³
- Kąt nachylenia dachu 30.00°
- Powierzchnia dachu 248.38 m²
- Wysokość budynku 7.14 m
- Min. wymiary działki 20.20x26.80 m
- Garaż 37.55 m²
- Pracownia Archipelag
Technologia budowy
Dom zaprojektowano w technologii murowej ze stropem gęstożebrowym. Elewacje wykonano z tynku strukturalnego. Schody wewnętrzne drewniane. Dach o konstrukcji drewnianej pokryty dachówką cementową. Stolarka okienna drewniana.
Opis
Dom parterowy z poddaszem użytkowym niepodpiwniczony z wbudowanym dwustanowiskowym garażem przeznaczony dla 4-5-osobowej rodziny. Bryła budynku prosta dach o tradycyjnym układzie. Na parterze zaprojektowano duży salon połączony z kuchnią dwa pokoje (gabinet + pokój gościnny) łazienkę z prysznicem oraz część gospodarczą. Z salonu prowadzi wyjście na zadaszony taras. Niewielka ilość ścian nośnych na parterze pozwala na elastyczne traktowanie powierzchni zaprojektowanych pomieszczeń. Na poddaszu mieszczą się trzy sypialnie i łazienka.
Rzuty
PARTER
- Wiatrołap 5.38 m2
- Hol 12.00 m2
- Kuchnia z jadalnią 16.08 m2
- Pokój dzienny 25.23 m2
- Łazienka 3.39 m2
- Pokój 9.25 m2
- Pokój 14.34 m2
- Pom. gospodarcze 5.86 m2
- Garaż 37.55 m2
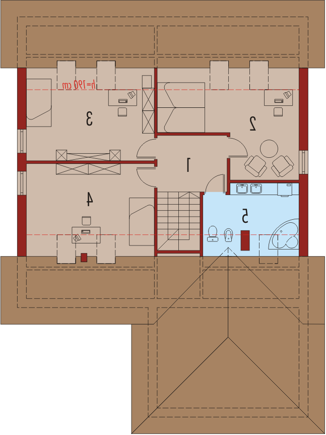
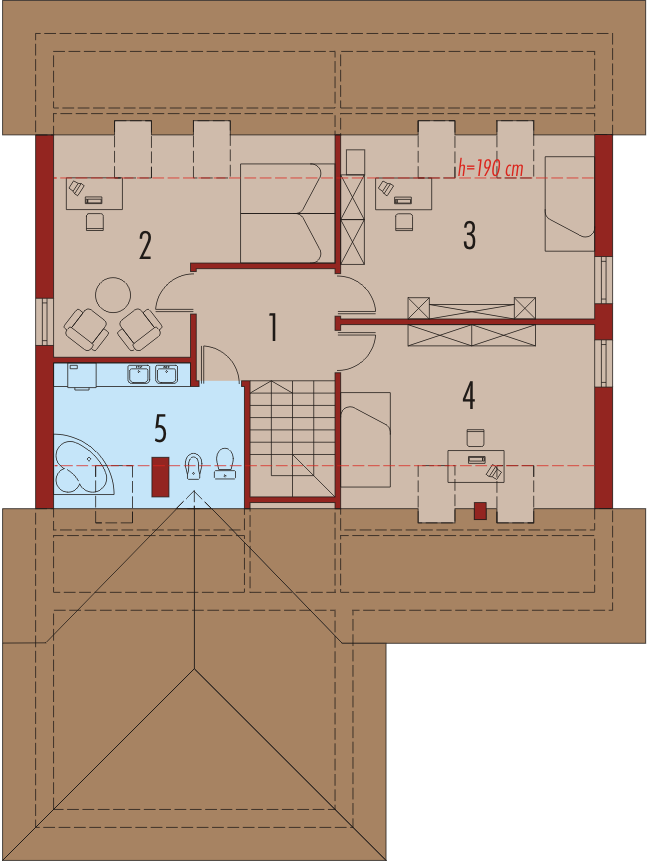
PODDASZE
- Korytarz 6.80 m2
- Sypialnia 13.09 m2
- Pokój 13.13 m2
- Pokój 13.16 m2
- Łazienka 6.15 m2
Rzuty
PARTER
- Wiatrołap 5.38 m2
- Hol 12.00 m2
- Kuchnia z jadalnią 16.08 m2
- Pokój dzienny 25.23 m2
- Łazienka 3.39 m2
- Pokój 9.25 m2
- Pokój 14.34 m2
- Pom. gospodarcze 5.86 m2
- Garaż 37.55 m2
PODDASZE
- Korytarz 6.80 m2
- Sypialnia 13.09 m2
- Pokój 13.13 m2
- Pokój 13.16 m2
- Łazienka 6.15 m2
Dbamy o swoich Klientów, jak nikt inny!
Do każdego projektu zakupionego za pośrednictwem serwisu kreoDOM.pl otrzymasz książeczkę z rabatami na zakupy w firmach Komfort, Fachowiec, Domino Łazienki, Komandor, Witek Home i innych. Książeczka na pewno okaże się przydatna podczas urządzania Twojego wymarzonego domu!
Książeczka z rabatami do takich firm jak: Komfort, Domino Łazienki, Fachowiec, Vox, Komandor, Witek Home i innych
Gwarancja
bezpiecznych zakupów
Dodatkowe pakiety projektowe
- Kosztorys inwestorski cena ustalana indywidualnie
- Wentylacja mechaniczna z rekuperacją 700,00 zł
- Wentylacja mechaniczna + GPWC 700,00 zł
- Kolektory Słoneczne 400,00 zł
- Panele Fotowoltaiczne 400,00 zł
- Pompa Ciepła 500,00 zł
- Kominek z DGP 400,00 zł
- Biologiczna oczyszczalnia ścieków 150,00 zł
- Centralny Odkurzacz 300,00 zł
- Szambo przydomowe 200,00 zł
- Dodatkowy egzemplarz projektu 150,00 zł