Ściany zewnętrzne i wewnętrzne nośne z bloczków Ytong, docieplone 20cm styropianu (15cm pod panelami HPL). Ścianki wewnętrze działowe na parterze z bloczków Silka, na poddaszu z płyt GK bądź murowane. Ściany fundamentowe z bloczków betonowych. Strop gęstożebrowy Teriva. Schody wewnętrzne żelbetowe. Wszystkie technologie można zmienić na etapie adaptacji.
Wykończenie:
Elewacje wykończone tynkiem mineralnym. Tynki wewnętrzne gipsowe lub cementowo-wapienne. Dachówka cementowa lub ceramiczna. Stolarka okienna drewniana lub PCV
Noelia BIS 2M to atrakcyjny i funkcjonalny dom przeznaczony dla 3-6 osobowej rodziny o eleganckiej formie i współczesnej estetyce oraz prostej i taniej konstrukcji. Jest to dom parterowy z użytkowym poddaszem, niepodpiwniczony, z garażem dwustanowiskowym.
Na parterze zlokalizowana jest obszerna strefa dzienna składająca się z kuchni, jadalni oraz salonu otwartego na taras i ogród. Dzięki doświetleniu strefy dziennej zarówno od strony ogrodu jak i z boku dom nadaje się na każdą działkę, zarówno z wjazdem od północy jak i od południa, wschodu bądź zachodu. W wiatrołapie przewidziano miejsce na szafy wnękowe przez co pełni on dodatkową rolę pojemnej garderoby.
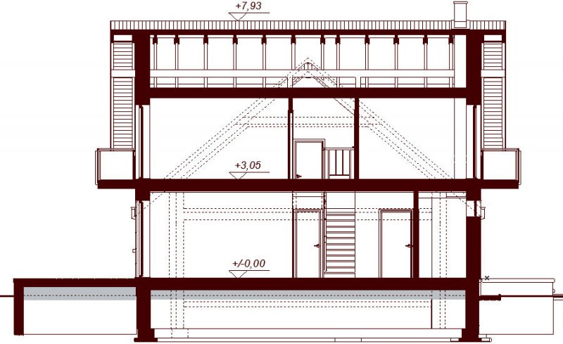
Na poddaszu znalazły się trzy duże i wygodne pokoje oraz obszerna łazienka. Strych dostępny jest z półpiętra, może on stanowić dodatkowy pokój, pracownię, garderobę, pralnię, siłownię czy salę z kinem domowym. Strych może zostać też podzielony na kilka pomieszczeń o różnych funkcjach.
W projektowaniu Noelii BIS szczególną uwagę zwrócono na atrakcyjny wygląd zewnętrzny, proporcjonalność bryły budynku, odpowiednie doświetlenie i funkcjonalne rozplanowanie pomieszczeń przy zachowaniu prostoty konstrukcji oraz zwartości bryły domu. Dom zaprojektowano jako energooszczędny.