Ściany zewnętrzne: murowane, dwuwarstwowe, beton komórkowy firmy H+H 24 cm, ocieplenie styropian Termo Organika 20 cm
Strop: międzypiętrowy gęstożebrowy Teriva
Dach: konstrukcja drewniana, ocieplenie wełna mineralna ISOVER 30 cm, blacha na rąbek stojący firmy Ruukki
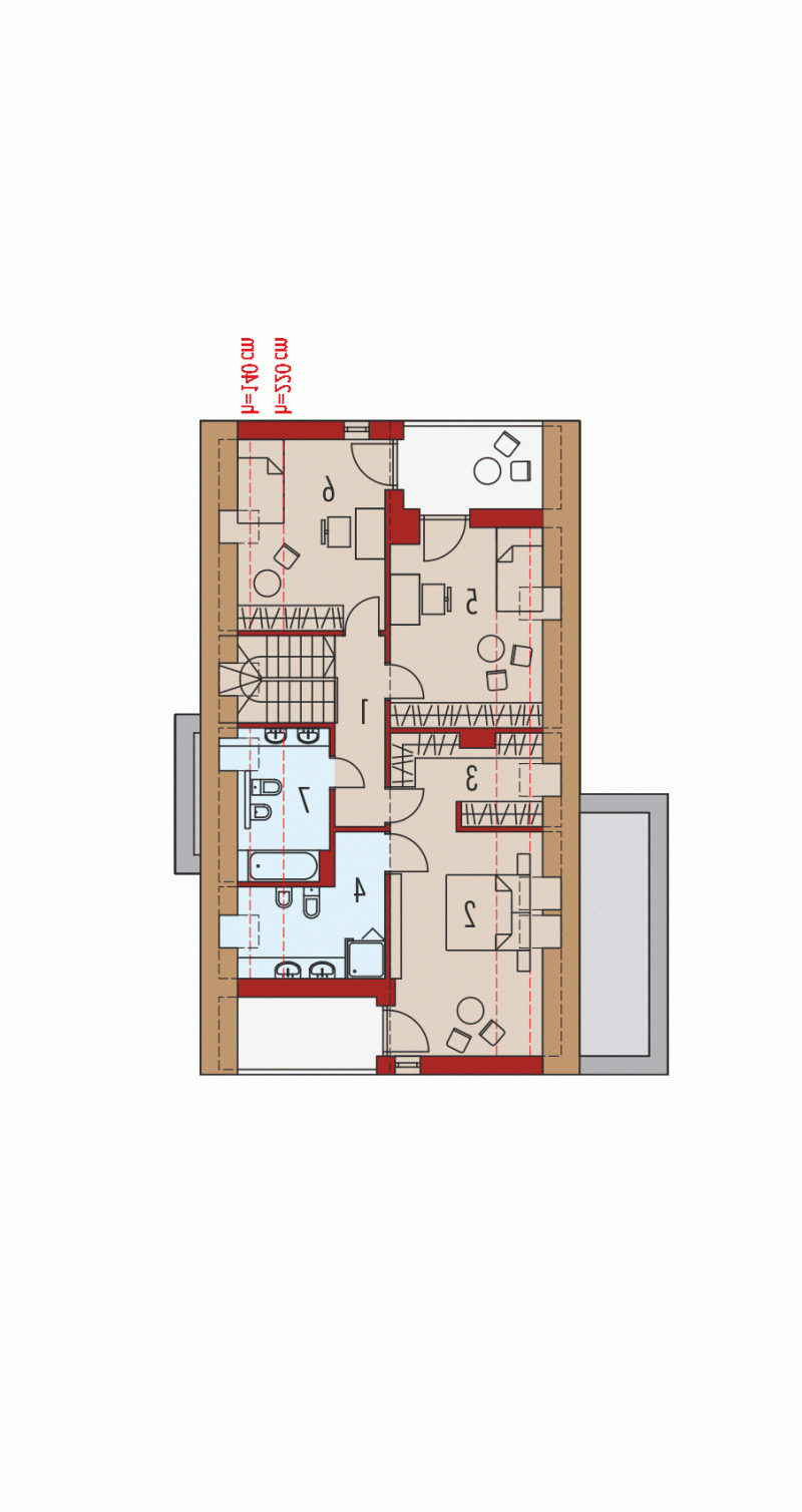
Inne: schody wewnętrzne drewniane Rozwiązania instalacyjne:
Ogrzewanie: kocioł gazowy kondensacyjny, rozprowadzenie ciepła: grzejniki
Wentylacja: grawitacyjna Wykończenie:
Elewacje: tynk cienkowarstwowy mineralny w kolorze TO-PA001 z palety firmy Termo Organika, okładzina z płyty HPL z naturalną okleiną drewnianą firmy Prodema
Stolarka: drewniana, PVC lub aluminiowa, żaluzje zewnętrzne w systemie CleverBox firmy BeClever
Okna połaciowe: rozwiązania technologiczne i wyłaz dachowy firmy VELUX Otoczenie: kwadratowa kostka betonowa z serii VERTIGO firmy Libet w kolorze jasno szarym, system tarasowy ProDeck - deska kompozytowa Terra w kolorze orzech
Riko III G2 to funkcjonalny i energooszczędny dom zamknięty w modnej bryle nowoczesnej stodoły, która gwarantuje bardzo dobre parametry cieplne. Dwuspadowy, elegancki dach pokryty blachą zgrabnie kontrastuje z bielą ścian, drewnianymi płaszczyznami i antracytowym detalem wykusza. Ciekawym elementem elewacji są bardzo przytulne loggie na poddaszu. Dobrze doświetlone wnętrze domu ma swoją kontynuację w częściowo osłoniętym tarasie, który pozwoli na relaks nawet w czasie niepogody. Riko III G2 to propozycja dla wymagającej komfortu w minimalistycznym wydaniu współczesnej rodziny!
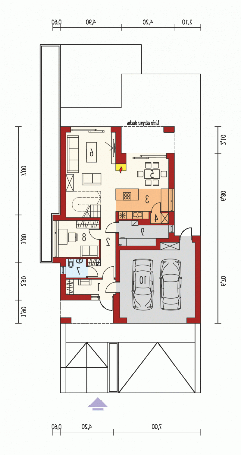
Charakterystyka: Dom parterowy z poddaszem użytkowym, niepodpiwniczony, z garażem dwustanowiskowym
Przeznaczenie: Dom dla 3-5-osobowej rodziny
Dostępne wersje projektu:
- Riko III – wersja bez garażu i z garażem jednostanowiskowym
- Riko - podobny układ funkcjonalny, cztery sypialnie na poddaszu, poddasze z jedną loggią, dach z okapami, inne wykończenie elewacji, różne wersje garaży
- Riko II – podobny układ funkcjonalny, dwie loggie na poddaszu, sypialnia główna z łazienką i garderobą, dach z okapami, inne wykończenie elewacji
- odbicie lustrzane do każdej wersji