Dane techniczne
- Powierzchnia użytkowa 150.60 m²
- Powierzchnia zabudowy 115.50 m²
- Kubatura 480.50 m³
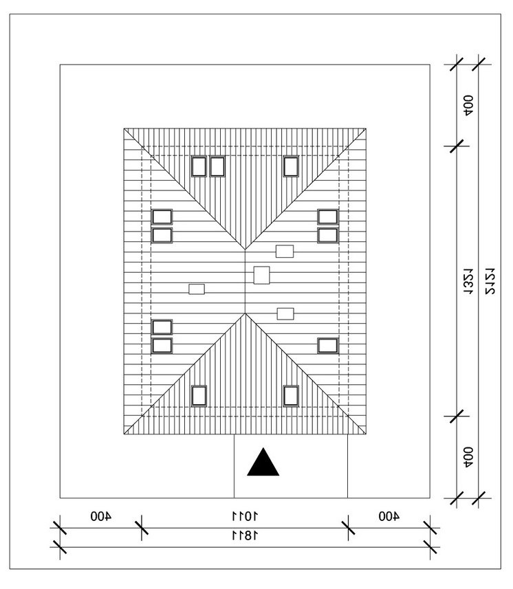
- Kąt nachylenia dachu 40.00°
- Wysokość budynku 8.73 m
- Min. wymiary działki 21.21x18.11 m
- Pracownia Opus dom
Technologia budowy
ściany – dwuwarstwowe: pustak ceramiczny 30cm ocieplony wełną mineralną.: nośne pustak ceramiczny, działowe murowane z cegły dziurawki lub g-k
pokrycie dachu – dachówka
strop – gęstożebrowy
elewacje- tynk mineralny, cokół – cegła lub okładzina klinkierowa
Opis
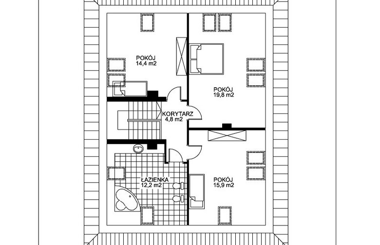
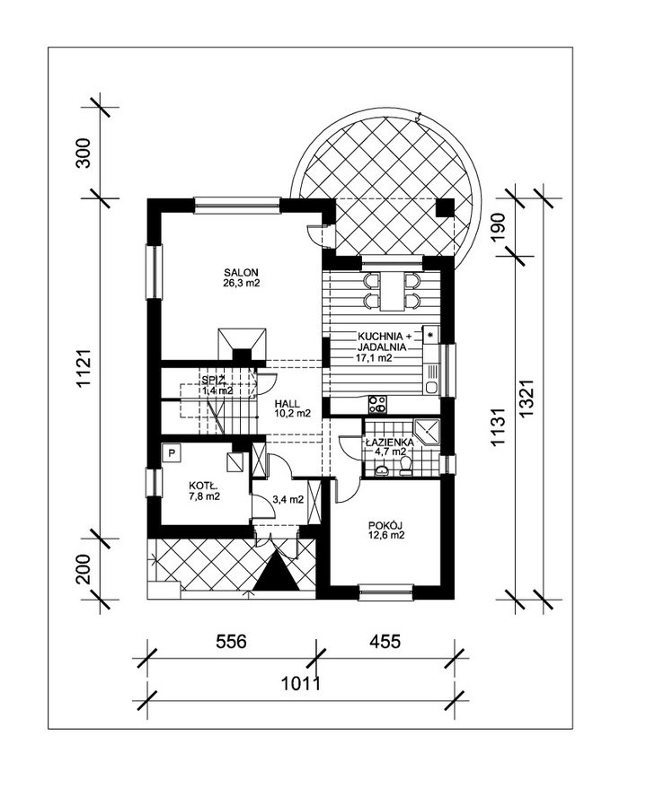
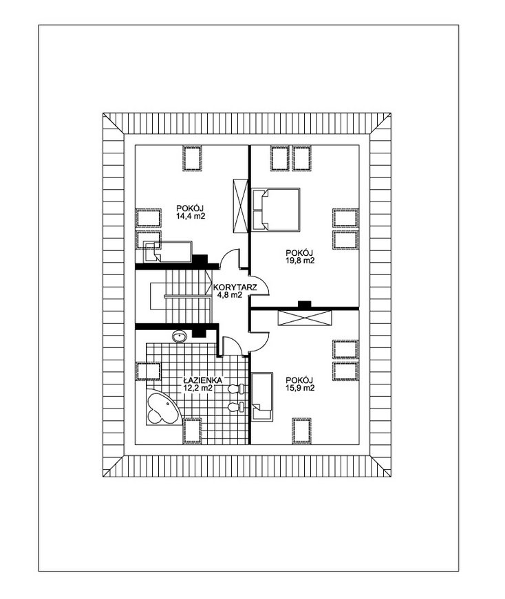
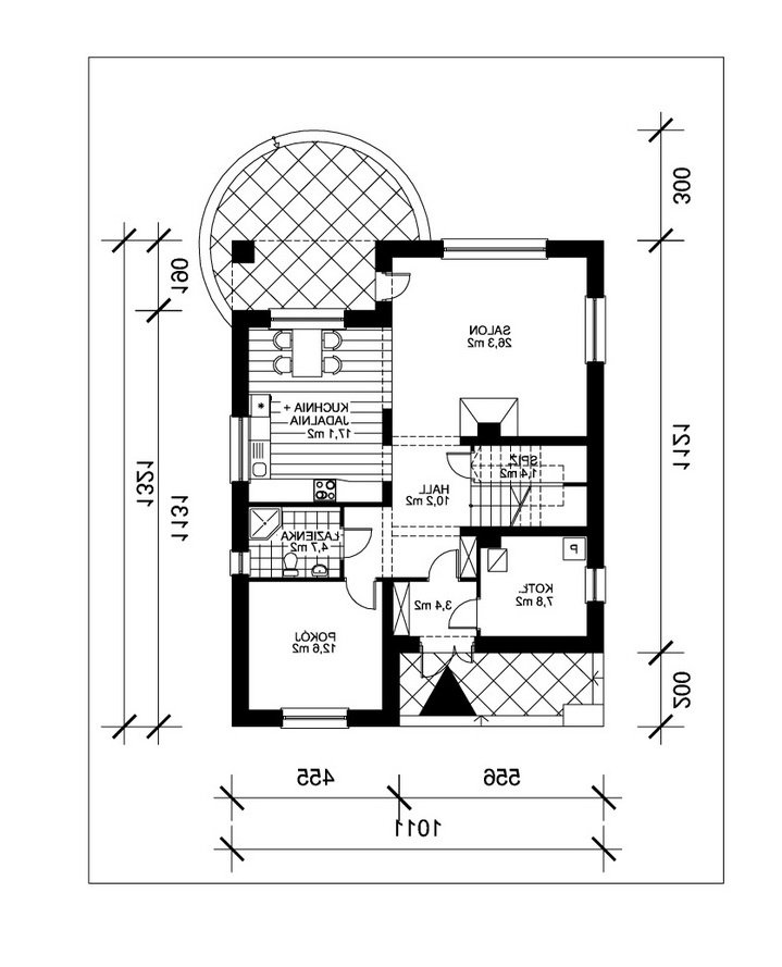
Wygodny dom jednorodzinny wolno stojący parterowy z dużym użytkowym poddaszem przeznaczony dla rodziny o schemacie 2+ 2.. Na parterze znajdują się pomieszczenie: wiatrołap, hall, łazienka, salon z kominkiem, kuchnia z jadalnią, pokój, spiżarnia i kotłownia. Na poddaszu znajdują się trzy duże sypialnie, łazienka i korytarz. Na poddaszu istnieje możliwość wydzielenia pomieszczenia garderoby ogólnodostępnej
Dbamy o swoich Klientów, jak nikt inny!
Do każdego projektu zakupionego za pośrednictwem serwisu kreoDOM.pl otrzymasz książeczkę z rabatami na zakupy w firmach Komfort, Fachowiec, Domino Łazienki, Komandor, Witek Home i innych. Książeczka na pewno okaże się przydatna podczas urządzania Twojego wymarzonego domu!
Książeczka z rabatami do takich firm jak: Komfort, Domino Łazienki, Fachowiec, Vox, Komandor, Witek Home i innych
Gwarancja
bezpiecznych zakupów
Dodatkowe pakiety projektowe