Ściany : nośne i działowe z pustaków ceramicznych
Strop: gęstożebrowy
Dach: konstrukcja drewniana, dachówka ceramiczna
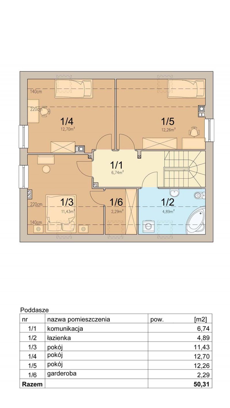
Tamarillo to mały uroczy domek, który świetnie wpisuje się w każde otoczenie, a zarazem posiada swój oryginalny styl. Dzięki bardzo prostej formie jest tani i łatwy w budowie. Dobrze rozplanowane pomieszczenia zapewnią wygodę w użytkowaniu 4-5 osobowej rodzinie. Dużym atutem projektu jest otwarty salon z miejscem na jadalnię i centralnie umieszczonym kominkiem. Kolejną zaletą jest duża kuchnia ze spiżarnią. Na parterze zaprojektowano pomieszczenie, które może służyć jako pokój gościnny lub gabinet, oraz łazienkę, dzięki czemu poddasze pozostanie strefą wyłącznie dla domowników. Ważnym elementem każdego domu, bez garażu, jest pomieszczenie gospodarcze z bezpośrednim wyjściem na ogród. Jego rozmiary pozwalają zainstalować kocioł na paliwo stałe. Na poddaszu znajdują się dwa komfortowe pokoje, sypialnia połączona z garderobą, oraz duża łazienka. Dostateczna wysokość ściany kolankowej umożliwia w pełni wykorzystanie powierzchni pod skosami dachu. Prosta bryła i nieskomplikowana konstrukcja, zdecydowanie ułatwią i przyspieszą realizację. Aby zapewnić niskie koszty eksploatacji i nie zwiększać kosztów budowy, w projekcie zastosowano rozwiązania energooszczędne – na poziomie ekonomicznie uzasadnionym