Dane techniczne
- Powierzchnia użytkowa 131.02 m²
- Powierzchnia zabudowy 134.68 m²
- Kubatura 448.31 m³
- Kąt nachylenia dachu 38.00°
- Powierzchnia dachu 156.72 m²
- Wysokość budynku 8.12 m
- Min. wymiary działki 17.84x21.94 m
- Garaż 29.22 m²
- Pracownia Studio Z500
Technologia budowy
Ściany: gazobeton, ceramika, silikaty
Dach: dachówka, blachodachówka
Strop: betonowy gęstożebrowy Teriva
Opis
Z231 to propozycja domu o prostej bryle z dwuspadowym dachem. Starannie dobrane dodatki oraz drewniane elementy elewacji dodają mu walorów estetycznych.
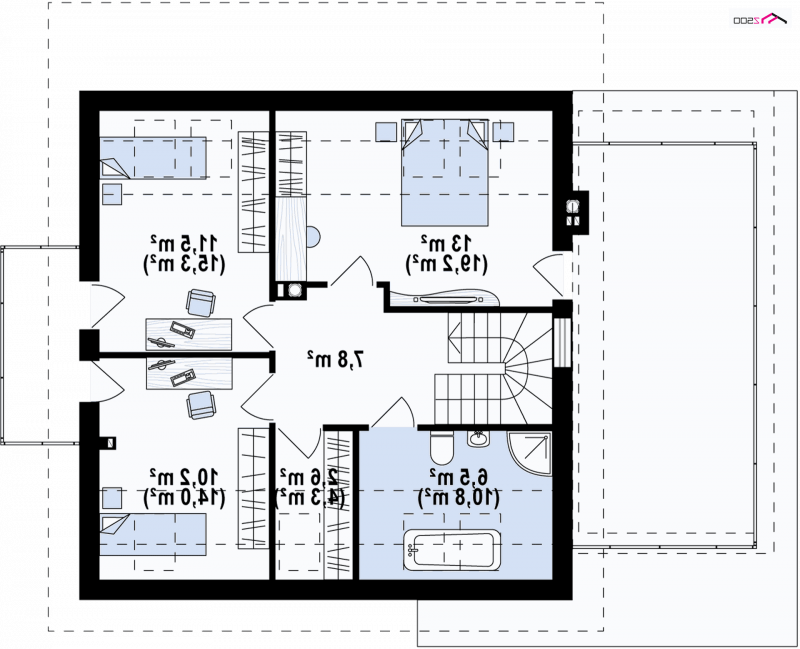
Na parterze znajduje się duży, jasny salon połączony z jadalnią i częściowo wydzielona kuchnia. Zlokalizowano tu również dodatkowy pokój, który może służyć jako gabinet albo pokój gościnny, oraz łazienkę z miejscem na prysznic. Z sieni jest bezpośredni dostęp do garażu jednostanowiskowego, na którego tyłach znajduje się spore pomieszczenie gospodarcze. Na piętrze umieszczono trzy duże sypialnie, garderobę oraz łazienkę, która pomieści zarówno wannę, jak i prysznic.
Projekt Z231 to idealna propozycja dla osób lubiących innowacyjne,przemyślane rozwiązania. Jego niepowtarzalną formę i funkcjonalny układ pomieszczeń doceni każdy kto w nim zamieszka.
Dbamy o swoich Klientów, jak nikt inny!
Do każdego projektu zakupionego za pośrednictwem serwisu kreoDOM.pl otrzymasz książeczkę z rabatami na zakupy w firmach Komfort, Fachowiec, Domino Łazienki, Komandor, Witek Home i innych. Książeczka na pewno okaże się przydatna podczas urządzania Twojego wymarzonego domu!
Książeczka z rabatami do takich firm jak: Komfort, Domino Łazienki, Fachowiec, Vox, Komandor, Witek Home i innych
Gwarancja
bezpiecznych zakupów
Dodatkowe pakiety projektowe
- Kosztorys inwestorski 249,00zł
- Zestawienie materiałów 57,00 zł
- Wentylacja mechaniczna z rekuperacja 550,00 zł
- Pompa ciepła 250,00 zł
- Kotłownia na paliwo stałe zapytaj o dostępność
- Ogrzewanie podłogowe 350,00 zł
- Kolektory słoneczne 250,00 zł
- Przydomowa oczyszczalnia ścieków 350,00 zł
- Wersja elektroniczna projektu 197,00 zł
- Dodatkowy egzemplarz projektu 249,00 zł